SHOWROOM NỘI THẤT TẠI SƠN LA
Showroom là một phạm trù lớn, nên mỗi chủ đầu tư luôn cân nhắc không biết mình nên thiết kế và bố trí đồ đạc thế nào cho hợp lý. Hôm nay chúng tôi xin giới thiệu công trình được Nhà Đẹp 4.0 thiết kế cho anh Khánh có địa chỉ tại Sơn La. Mời quý các bạn cùng tham khảo.

Showroom nội thất với mặt tiền 19m
THÔNG TIN CÔNG TRÌNH SHOWROOM NỘI THẤT DIỆN TÍCH 16,2M X 19,3M
- Chủ đầu tư: anh Khánh
- Địa điểm: Sơn La
- Năm thiết kế: 2020
- Diện tích thiết kế: 16,2m x 19,3m
- Phong cách: Showroom nội thất.
YÊU CẦU THIẾT KẾ CHO SHOWROOM NỘI THẤT DIỆN TÍCH 16,2M X 19,3M
Anh Khánh tìm đến công ty chúng tôi với những mong muốn cho ngôi nhà của mình cụ thể như sau:
- Gia đình muốn thi công Showroom nội thất với kích thước 16,2 x 19,3m.
- Khu đất của gia đình khá rộng, đặc biệt mặt tiền rất mở nên anh muốn showroom thực sự nổi bật và hút mắt.
- Ngoại thất công trình màu nhẹ nhàng, thanh thoát, không kém phần sang trọng và hiện đại.

Showroom nội thất diện tích 9x14m
Ngay sau khi tiếp nhận yêu cầu tư vấn thiết kế của chủ đầu tư, chúng tôi đã đến hiện trạng để khảo sát khu vực thi công công trình, từ đó đưa ra các phương án sơ bộ cho chủ đầu tư lựa chọn.
Sau khi chốt phương án tư vấn, chúng tôi tiến hành họp bàn và chốt phương án 3D chi tiết.


Showroom đang trong quá trình hoàn thiện
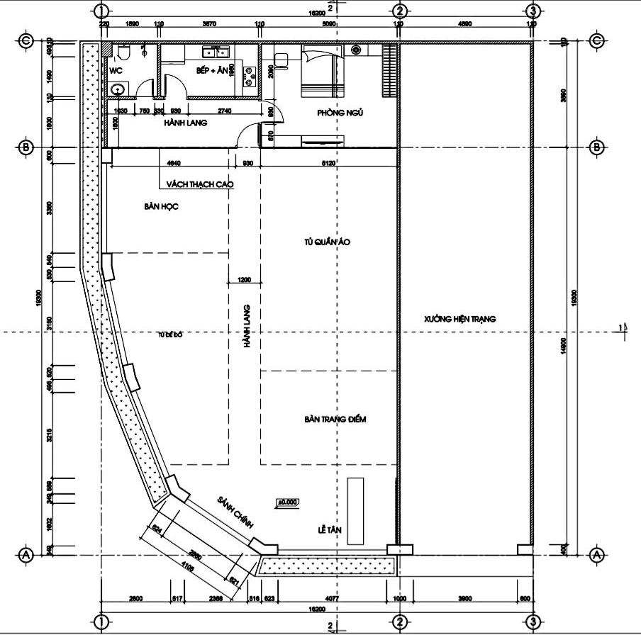
MẶT BẰNG CÔNG NĂNG SHOWROOM DIỆN TÍCH 16,2M X 19,3M

.jpg)
.jpg)


Trên đây là bản thiết kế mẫu Showroom diện tích 16,2x19,3m cho anh Khánh tại Sơn La. Với những gì chúng tôi đã chia sẽ, hy vọng mọi người đã có ý tưởng và dự định cho bản thân và sớm sở hữu cho mình một ngôi nhà lý tưởng. Chúc các bạn thành công!
