NV2021008| MẪU BIỆT THỰ TÂN CỔ ĐIỂN HIỆN ĐẠI TƯƠI MỚI TẠI TAM DƯƠNG
Biệt thự 1 tầng tân cổ điển đang trở nên rất phổ biến với nhiều kiểu kiến trúc độc đáo và lạ mắt. Tuy nhiên để thiết kế bố trí nội thất đảm bảo đầy đủ công năng thẩm mỹ là điều không hề dễ dàng. Hãy cùng chúng tôi khám phá và chiêm ngưỡng mẫu thiết kế kế biệt thự phong cách tân cổ điển. Biết đâu bạn sẽ hoàn thiện được ý tưởng thiết kế công trình trong tương lai của gia đình mình.
.jpg)
Phối cảnh 3D biệt thự tân cổ 14,7m x 15m
Thiết kế biệt thự vốn đồ sộ về quy mô và hình khối, cùng với công năng được bố trí tối ưu hoá đã tạo nên một môi trường sống lý tưởng và hoàn hảo cho nhiều gia đình.
Xét về mặt kinh tế, những mẫu nhà biệt thự tân cổ điển thường có kinh phí đầu tư cao hơn so với những mẫu biệt thự cấp 4 mái thái đơn giản, tuy nhiên giá trị sống “đích thực” nó mang lại khá lớn lao.
Hôm nay Nhà Đẹp 4.0 sẽ giới thiệu với mọi người 1 mẫu biệt thự tân cổ điển do đội ngũ kts Nhà Đẹp 4.0 thiết kế cho gia đình nhà anh Toàn tại Tam Dương để mọi người cùng tham khảo và lên ý tưởng cho ngôi nhà mơ ước của mình.
.jpg)
Phối cảnh 3D biệt thự tân cổ 14,7m x 15m
THÔNG TIN CÔNG TRÌNH BIỆT THỰ TÂN CỔ DIỆN TÍCH 14,7M X 15M
- Chủ đầu tư: anh Toàn
- Điạ điểm: Tam Dương
- Năm thiết kế: 2021
- Diện tích thiết kế: 14,7m x 15m
- Công năng: 5 phòng ngủ, 1 phòng khách, 1 phòng thờ, 1 phòng bếp, 1 phòng kho.
Biệt thự một tầng nhà anh Toàn được sử dụng hệ mái thái vì đây là mẫu mái không những phù hợp với đặc điểm cấu tạo của biệt thự mà nó còn có nhiều ưu điểm vượt trội so với những loại mái khác. Mái thái có độ dốc vừa phải nên giúp nước mưa được thoát nhanh hơn, tránh thấm giột, đồng thời nó còn chống nóng khá hiệu quả cho ngôi biệt thự. Không những vậy, mái thái còn giúp tôn lê vẻ thanh thoát, cao ráo của ngôi biệt thự.
Các phần cột trụ được sử dụng loại cột tròn có các họa tiết tạo điểm nhấn ở 2 đầu chân cột. Các hệ cửa và quanh nhà được trang trí bằng các gờ đắp nổi mang đặc trưng của thiết kế tân cổ điển mang lại sự nhẹ nhàng, tạo điểm nhấn cho tổng thể ngôi biệt thự.
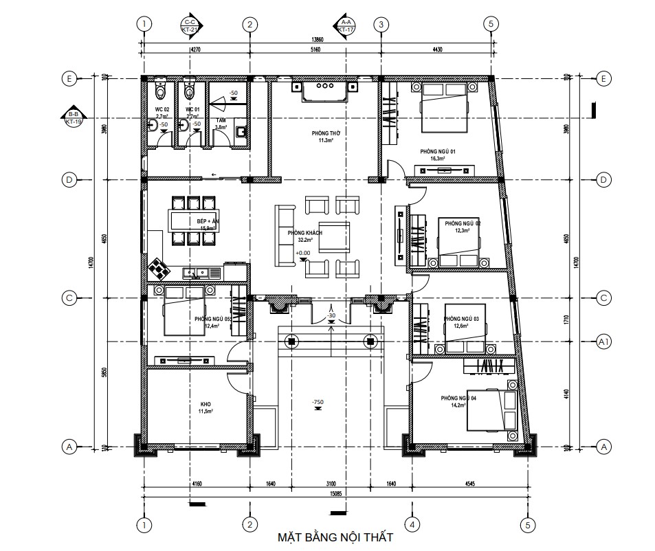
MẶT BẰNG CÔNG NĂNG BIỆT THỰ TÂN CỔ DIỆN TÍCH 14,7M X 15M
.jpg)
Từ nhu cầu bố trí 5 phòng ngủ, kiến trúc sư dựa trên khảo sát hiện trạng thực tế, từ đó đưa ra phương án bố trí mặt bằng công năng biệt thự cụ thể như sau:
Từ hiên chính sẽ thấy ngay khu vực của 2 phòng ngủ cùng với phòng kho ở 2 bên. Bước vào chính diện cửa chính, là phòng khách rộng và tiện nghi. Từ phòng khách thiết kế chạy thẳng vào trong là phòng thờ trang nghiêm. Phía tay phải, bố trí 3 phòng ngủ, thuận tiện cho việc sử dụng và kết nối không gian nhà cấp 4. Phía tay trái bố trí phòng bếp cùng với khu vệ sinh chung cho cả gia đình đặt cuối nhà.
Mẫu biệt thự tân cổ điển cấp 4 hiện đại, tươi mới, không gian sống đảm bảo khoa học và tính thẩm mĩ, với hành lang giao thông và kết nối tối ưu. Gia đình anh toàn hoàn toàn hài lòng và đồng ý với phương án thiết kế của chúng tôi.
Trên đây là bản thiết kế mẫu biệt thự tân cổ 14,7m x 15m của gia đình nhà anh Toàn tại Tam Dương. Hy vọng trên đây sẽ là gợi ý phù hợp cho các bạn khi đang muốn xây dựng ngôi nhà phong cách và kích thước tương tự. Cảm ơn và chúc các bạn thành công!
