NP2021005| NHÀ PHỐ 2 TẦNG HIỆN ĐẠI CÓ GÁC LỬNG TIẾT KIỆM KHÔNG GIAN CHO GIA ĐÌNH TẠI VĨNH TƯỜNG
Thiết kế nhà 2 tầng có gác lửng nhằm tăng diện tích chiều cao sử dụng, việc này rất thích hợp với những nhà lô, nhà phố có diện tích hẹp hoặc nằm trong khu vực bị khống chế chiều cao. Việc thiết kế tầng lửng sẽ mang đến nhiều không gian sử dụng cho ngôi nhà đảm bảo sự thoải mái trong quá trình sinh hoạt.
Đối với những người yêu thích phong cách những ngôi nhà hiện đại. Mẫu nhà phố 2 tầng có gác lửng vẫn đáp ứng được yêu cầu khắt khe của bạn. Tầng gác lửng là tầng trung gian giữa tầng một và tầng hai. Việc thiết kế thêm tầng gác lửng này giúp chủ nhà tận dụng tối ưu không gian. Tầng gác lửng có thể được sử dụng với mục đích như một căn phòng chung của mọi người. Như là vui chơi, trò chuyện với nhau. Hoặc tầng gác lửng còn có thể được thiết kế để sử dụng như một phòng bếp. Phòng khách cũng là ý tưởng được nhiều người áp dụng. Hay kể cả phòng ngủ sử dụng tầng gác lửng. Nó có khả năng đảm nhận được nhiều công năng khác nhau trong ngôi nhà. Sau đây là hồ sơ thiết kế đã được chúng tôi bàn giao cho gia đình anh Cường tại Vĩnh Tường – một sản phẩm của Nhà Đẹp 4.0, mời quý bạn đọc cùng tham khảo.
.jpg)
Phối cảnh 3D cho Anh Cường - Vĩnh Tường
YÊU CẦU THIẾT KẾ CHO NGÔI NHÀ PHỐ 8,5M X 9,7M
Anh Cường tìm đến công ty chúng tôi với những mong muốn cho ngôi nhà của mình cụ thể như sau:
- Gia đình muốn thi công mẫu nhà phố với diện tích 8,5m x 9,7m.
- Chính vì là nhà phố duy nhất 1 mặt tiền nên các bác mong muốn ngôi nhà thật sự nổi bật và sang trọng.
- Mang hơi hướng hiện đại, đơn giản nhưng vẫn thu hút, độc đáo.
- Công năng dự kiến thi công là: không gian bán hàng tầng 1, 3 phòng ngủ, 1 phòng thờ, 1 phòng khách, phòng bếp, 2wc.
- Ngoại thất công trình ốp đá, gạch thẻ inax điểm nhấn khỏe khoắn hiện đại, gần gũi với thiên nhiên.
.jpg)
Phối cảnh 3D mẫu nhà phố hiện đại diện tích 8,5m x 9,7m
Dễ dàng nhận thấy mẫu thiết kế nhà phố 2 tầng có gác lửng tại Đông Anh được thiết kế theo phong cách hiện đại. Với các tạo hình khối rõ ràng và dứt khoát. Các khối hình trang trí vuông góc với nhau nhưng vẫn tạo ra sự mềm mại. Giảm bớt sự cứng nhắc và thô cho phần mặt tiền. Mặt tiền tầng một và tầng lửng được ốp đá, gạch thẻ inax sang trọng và ấn tượng. Tạo điểm nổi bật, thu hút ánh nhìn của những người xung quanh. Ở phía trên, đối diện với tầng lửng. Kiến trúc sư khéo léo thiết kế cửa kính thay vì xây kín như thông thường. Các thiết kế tinh tế giúp cho tầng lửng và cả không gian tầng một sáng hơn.
MẶT BẰNG CÔNG NĂNG NHÀ PHỐ DIỆN TÍCH 8,5M X 9,7M
.jpg)
Mặt bằng tầng 1 nhà phố 8,5m x 9,7m
.jpg)
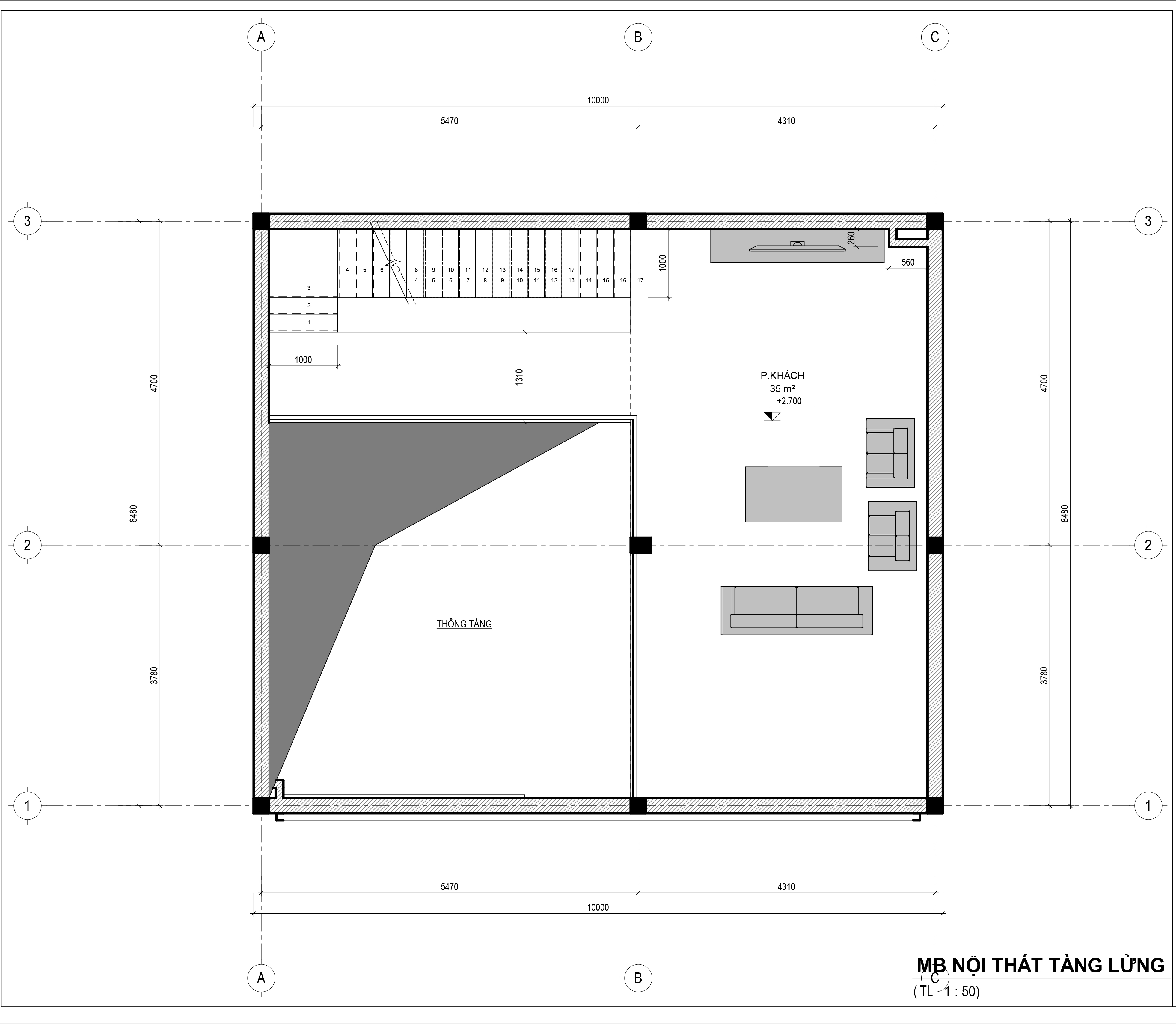
Mặt bằng tầng lửng nhà phố 8,5m x 9,7m
.jpg)
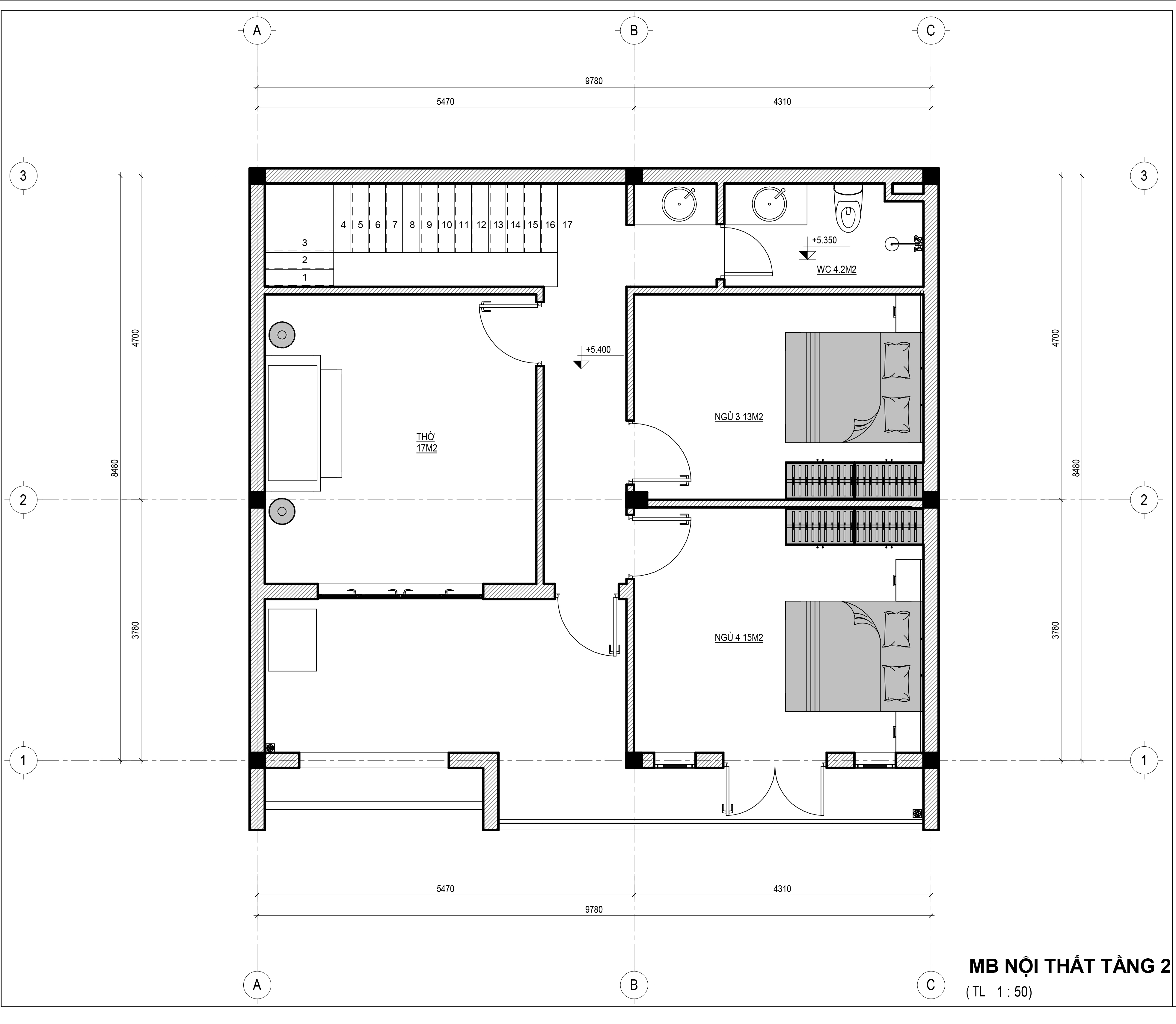
Mặt bằng tầng 2 nhà phố 8,5m x 9,7m
.jpg)
Mặt cắt nội thất 3D tầng 1 nhà phố 8,5m x 9,7m
.jpg)
Mặt cắt nội thất 3D tầng lửng nhà phố 8,5m x 9,7m
.jpg)
Mặt cắt nội thất 3D tầng 2 nhà phố 8,5m x 9,7m
Trên đây là bản thiết kế mẫu nhà phố diện tích 8,5x9,7m cho gia đình nhà anh Cường. Với những gì chúng tôi đã chia sẽ, hy vọng mọi người đã có ý tưởng và dự định cho bản thân và sớm sở hữu cho mình một ngôi nhà lý tưởng. Chúc các bạn thành công!
