NP2021002| NHÀ PHỐ HIỆN ĐẠI THIẾT KẾ MỚI NĂM 2021
Thiết kế nhà phố 3 tầng đẹp hiện nay đang là xu thế bùng nổ ở các thành phố lớn như Hà Nội và Hồ Chí Minh. Lý do cũng là tình trạng đất chật người đông, quỹ đất xây dựng thì ngày một hiếm và đắt đỏ.
Nhà Đẹp 4.0 là đơn vị chuyên nghiệp về tư vấn thiết kế kiến trúc nhà ở theo ý tưởng riêng cho mỗi khách hàng. Chính vì vậy sau đây chúng tôi sẽ chia sẻ một mẫu nhà phố 3 tầng đẹp 2021 mà chúng đẫ thiết kế cho anh Khánh tại Mê Linh để các bạn tham khảo và nghĩ ý tưởng cho mẫu nhà 3 tầng của mình sao cho hài lòng nhất.
Thiết kế nhà phố 3 tầng cho các gia chủ có mảnh đất với diện tích nhỏ, thì đây là mẫu bạn có thể tham khảo và lựa chọn, đây là mẫu nhà thiết kế theo phong cách hiện đại, tối giản những vẫn đảm bảo được mọi công năng cho các gia đình gồm 3 thế hệ sinh sống. Với diện tích nhỏ nhà được thiết kế vẫn đảm bảo mọi không gian xanh mát, giúp ngôi nhà không bị quá gò bó, mọi thành viên trong nhà luôn hòa hợp với thiên nhiên hơn.
.jpg)
Mẫu nhà phố với mặt tiền 4m
YÊU CẦU THIẾT KẾ CHO NGÔI NHÀ PHỐ 4M x 20M
Anh Khánh tìm đến công ty chúng tôi với những mong muốn cho ngôi nhà của mình cụ thể như sau:
- Gia đình muốn thi công mẫu nhà phố với diện tích 4m x 20m.
- Chính vì là nhà phố duy nhất 1 mặt tiền nên chú mong muốn ngôi nhà thật sự nổi bật và sang trọng.
- Mang hơi hướng hiện đại, đơn giản nhưng vẫn thu hút, độc đáo.
- Công năng dự kiến thi công là 4 phòng ngủ, 1 phòng thờ, 1 phòng khách, 1 phòng bếp.
- Ngoại thất công trình màu trắng chủ đạo, điểm nhấn khỏe khoắn hiện đại, gần gũi với thiên nhiên.
- Chi phí hoàn thiện dự tính không vượt quá 1,5 tỷ.
Hướng đến xây dựng một không gian hiện đại và thân thiện, mẫu biệt thự 3 tầng được thiết kế đầy trang nhã. Không quá cầu kỳ, mọi chi tiết lẫn màu sắc đều thể hiện được sự nhẹ nhàng, thanh thoát.
Điểm nhấn của tổng thể công trình chính là phần ốp tường được thiết kế ở phần mặt tiền của ngôi nhà, chính yếu tố này góp phần tạo sự sang trọng, ấm áp cho tổng thể ngôi nhà. Thêm vào đó, vật liệu kính được sử dụng để làm lan can, cộng với việc bố trí cửa trước rộng mở càng làm tăng thêm sự thông thoáng, mát lành, tối ưu diện tích đón nắng gió tự nhiên.
.jpg)
Mẫu nhà phố với mặt tiền 4m
Thiết kế nhà đẹp này cũng không thể vắng mặt các mảng xanh, chậu cây được bố trí hợp lý mang đến sắc tươi tràn ngập căn nhà. Với thiết kế hệ mái bằng, cùng sảnh chính rộng rãi cho công trình sẽ giúp công trình thông thoáng hơn rất nhiều, thiết kế đơn giản nhưng vẫn có sức hút độc đáo, sang trọng.
.jpg)
Mẫu nhà phố với mặt tiền 4m
MẶT BẰNG CÔNG NĂNG NHÀ PHỐ DIỆN TÍCH 4M X 20M
.jpg)
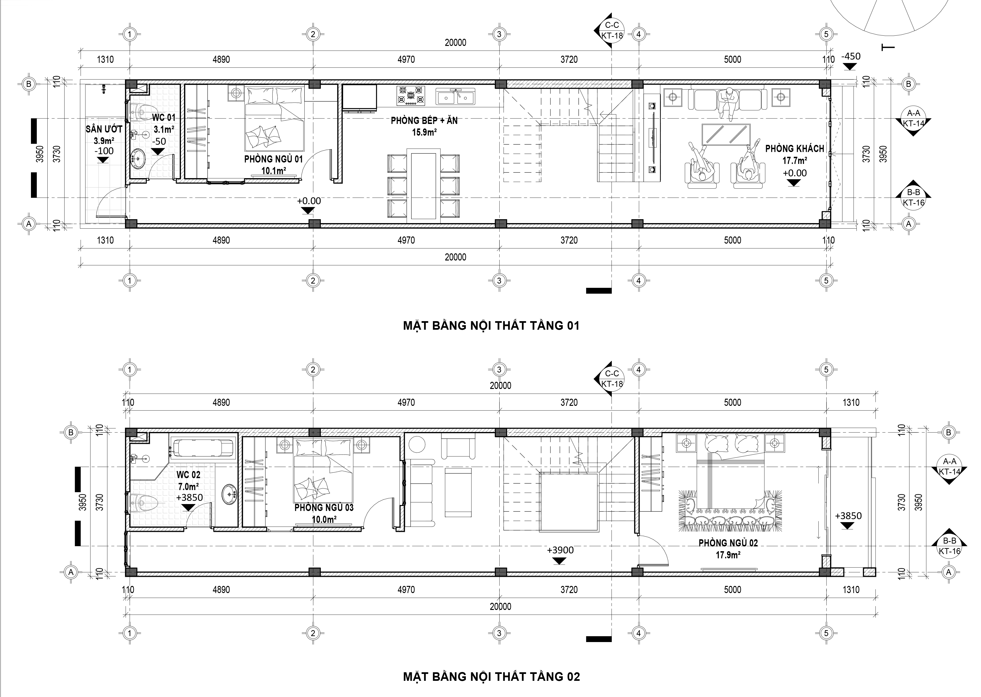
Mặt bằng nội thất tầng 1 + tầng 2
.jpg)
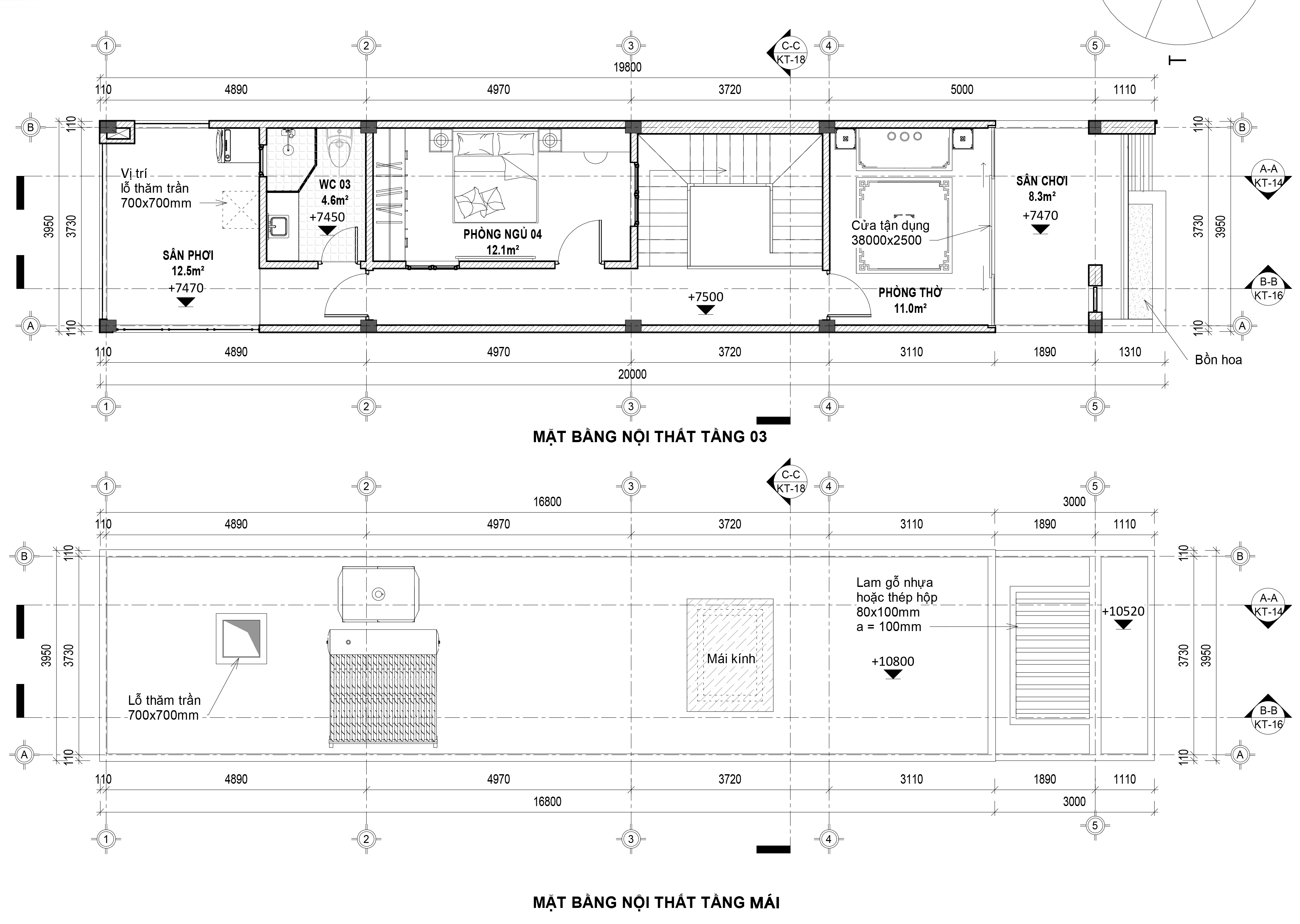
Mặt bằng nội thất tầng 3 + tầng mái
Với lợi thế chiều sâu, phần thiết kế tầng trệt của mẫu nhà đẹp 3 tầng này sẽ được bố trí một cách hợp lý, sắp xếp các không gian liên tiếp nhau, tạo sự thuận tiện tối đa nhưng vẫn đảm bảo được tính thẩm mỹ.
Được ví là bộ mặt của toàn bộ ngôi nhà, do vậy phòng khách được hầu hết các gia chủ quan tâm thiết kế, vừa thể hiện được sự tiện nghi, hiện đại vừa mở ra một thế giới thân mật gần gũi.
Một bộ sofa đơn giản sẽ được đặt tại tâm điểm, theo đó là các chi tiết trang trí đính kèm không quá cầu kỳ nhưng thể hiện được sự sang trọng và tinh thế.
Tiếp đó sẽ là không gian bếp, nằm ngay phía sau cầu thang. Tại đây, phần nội thất cũng được bố trí một cách hợp lý nhằm tạo sự thuận tiện. Đây là không gian sinh hoạt chung, nơi mọi người cùng thưởng thức những bữa ăn ngon nên phần trang trí sẽ hướng đến sự ấm áp, gần gũi và nhẹ nhàng bình yên nhất.Phòng ngủ đầu tiên sẽ được đặt ở cuối căn nhà. Một phòng vệ sinh sẽ được đặt cạnh đó nhằm đáp ứng tối đa nhu cầu của gia chủ. Lên tầng 2 được bố trí 2 phòng ngủ, 1 wc chung và 1 phòng sinh hoạt chung. Tiếp tục lên tầng 3 là 1 phòng ngủ, 1 wc chung với 1 phòng thờ.
Trên đây là bản thiết kế mẫu nhà phố diện tích 4x20m cho gia đình nhà anh Khánh. Với những gì chúng tôi đã chia sẽ, hy vọng mọi người đã có ý tưởng và dự định cho bản thân và sớm sở hữu cho mình một ngôi nhà lý tưởng. Chúc các bạn thành công!
