NHÀ PHỐ 2 TẦNG 1 TUM ĐẸP NHẤT TẠI HƯNG YÊN
Một ngôi nhà phố vừa đủ công năng, vừa đạt được độ thẩm mĩ, có phải vấn đề các bạn đang băn khoăn. Vậy quý bạn đọc đừng bỏ qua bài viết này nhé. Hồ sơ thiết kế đã được chúng tôi bàn giao cho gia đình nhà chú Phong tại Hưng Yên – một sản phẩm của Nhà Đẹp 4.0, mời quý bạn đọc cùng tham khảo.

Mẫu nhà phố với mặt tiền 9m
THÔNG TIN CÔNG TRÌNH NHÀ PHỐ DIỆN TÍCH 8,4M x 12,3M
- Chủ đầu tư: chú Phong
- Địa điểm: Hưng Yên
- Năm thiết kế: 2020
- Diện tích thiết kế: 9m x 10,5m
- Công năng: 4 phòng ngủ, 1 phòng thờ, 1 phòng khách, 1 phòng bếp.
- Chi phí hoàn thiện dự kiến: 1,8 tỷ
YÊU CẦU THIẾT KẾ CHO NGÔI NHÀ PHỐ 8,4X12,3M
Chú Phong tìm đến công ty chúng tôi với những mong muốn cho ngôi nhà của mình cụ thể như sau:
- Gia đình muốn thi công mẫu nhà phố với diện tích 8,4m x 12,3m.
- Chính vì là nhà phố duy nhất 1 mặt tiền nên các bác mong muốn ngôi nhà thật sự nổi bật và sang trọng.
- Mang hơi hướng hiện đại, đơn giản nhưng vẫn thu hút, độc đáo.
- Công năng dự kiến thi công là 4 phòng ngủ, 1 phòng thờ, 1 phòng khách, phòng bếp và wc chung.
- Ngoại thất công trình màu trắng chủ đạo, điểm nhấn khỏe khoắn hiện đại, gần gũi với thiên nhiên.
- Chi phí hoàn thiện dự tính không vượt quá 2 tỷ.

Phối cảnh 3d mẫu nhà phố hiện đại diện tích 8,4x12,3m
Ngay sau khi tiếp nhận yêu cầu tư vấn thiết kế của chủ đầu tư, chúng tôi đã đến hiện trạng để khảo sát khu vực thi công công trình, từ đó đưa ra các phương án sơ bộ cho chủ đầu tư lựa chọn.
Sau khi chốt phương án tư vấn, chúng tôi tiến hành họp bàn và chốt phương án 3D chi tiết.

Với thiết kế hệ mái bằng, cùng sảnh chính rộng rãi cho công trình sẽ giúp công trình thông thoáng hơn rất nhiều, thiết kế đơn giản nhưng vẫn có sức hút độc đáo, sang trọng.
Toàn bộ đế công trình được ốp đá không chỉ mang lại tính thẩm mĩ mà còn ngăn thấm nước giảm bớt sự ảnh hưởng cho chất lượng của công trình trong thời gian sử dụng.
Ngoài màu trắng sứ, thân nhà còn được bật lên bởi màu của cửa sổ hệ nhôm xingfa, màu gỗ của cửa chính. Đồng thời trên tầng 2 được bố trí một hệ vách đặc ốp gạch thẻ xám tạo điểm nhấn nổi bật. Việc kết hợp màu sắc này giúp công trình của chúng ta không chỉ mạnh mẽ, bề thế, mà còn rất cuốn hút và nổi bật.
Đáp ứng nhu cầu thông thoáng gần gũi với thiên nhiên, chúng tôi không quên đặt ở phía trước nhà khoảng đất trồng cây giúp không gian sinh hoạt trở nên thoải mái và dễ chịu, chinh phục mọi góc nhìn xung quanh.
MẶT BẰNG CÔNG NĂNG NHÀ PHỐ DIỆN TÍCH 8,4M X 12,3M

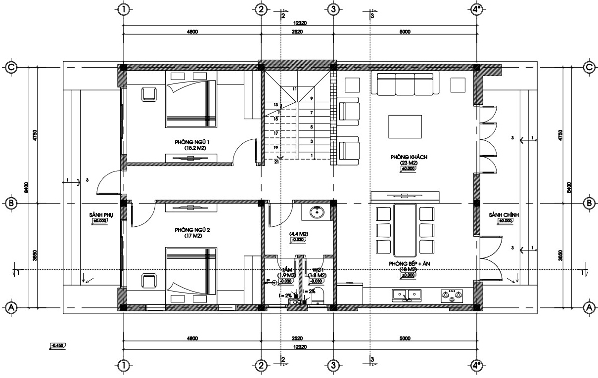
Mặt bằng tầng 1 nhà phố 8,4x12,3m

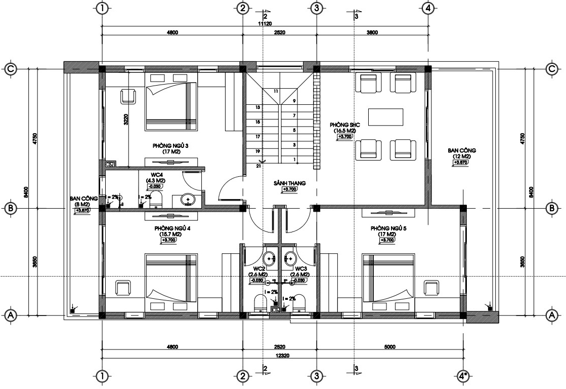
Mặt bằng tầng 2 nhà phố 8,4x12,3m

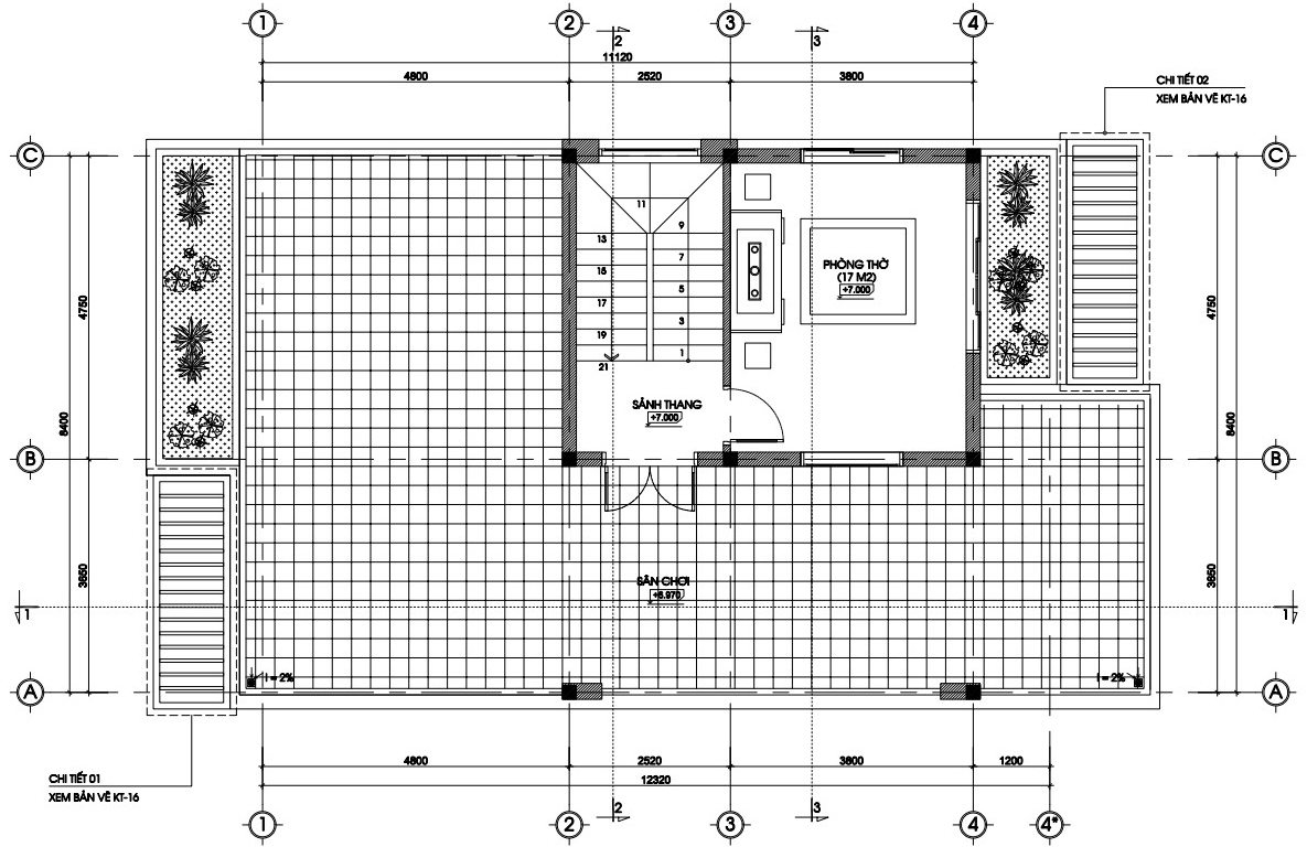
Mặt bằng tầng tum nhà phố 8,4x12,3m
Bước từ ngoài vào trong là phòng khách thiết kế rộng rãi với diện tích 23m2. Không gian phòng khách được thiết kế tối giản, nối liền với khu vực bếp ăn phía bên trái, ngăn cách nhau bằng một kệ tivi. Phòng bếp ăn rộng 18m2, được mở rộng bằng một sảnh riêng rẽ ra bên ngoài. Bếp ăn được sắp xếp gọn gàng với khu vực nấu nướng hướng hợp mệnh gia chủ và bàn ăn đầy đủ. Đi sâu vào bên trong là không gian các phòng ngủ. Phía bên trái là nhà vệ sinh chung rộng 4,4m2. Còn lại 1 phòng ngủ lớn rộng 17m2 và một phòng ngủ nhỏ rộng 15,2 m2 được bố trí đồ đạc tương tự nhau. Một lối nữa đi ra sảnh phụ phía sau nhà, bảo toàn việc đi lại riêng tư của gia đình mà không cần đi qua phòng khách.
Lên trên tầng 2 là những không gian riêng tư của các phòng ngủ có wc bên trong. Bên phải cầu thang là 1 phòng ngủ 17m2 và phía trước cầu thang là 1 phòng ngủ nhỏ 15,7m2, 1 phòng ngủ lớn cũng có diện tích 17m2. Mỗi không gian của các phòng ngủ khép kín đều được bố trí cửa sổ lấy sáng tạo độ thoáng cho căn phòng. Còn lại trên tầng 2 là 1 phòng SHC rộng 16m2. Cả trước và sau nhà đều được bố trí khu vực ban công rộng rãi, mở độ thông thoáng tối ưu cho không gian của 1 ngôi nhà phố.
Trên tầng tum là không gian riêng cho khu vực phòng thờ, rộng 17m2. Việc bố trí này giúp phòng thờ của gia đình luôn tôn nghiêm, ấm cúng, yên tĩnh nhất có thể.
Trên đây là bản thiết kế mẫu nhà phố diện tích 9x10,5m cho gia đình nhà chú Phong. Với những gì chúng tôi đã chia sẻ, hy vọng mọi người đã có ý tưởng và dự định cho bản thân và sớm sở hữu cho mình một ngôi nhà lý tưởng. Chúc các bạn thành công!
