MẪU NHÀ 1 TẦNG KHUÔN VIÊN ĐẤT 400M2 TẠI THÁI BÌNH
Với diện tích đất gần 400m2, quý vị đã chọn cho mình mẫu nhà phù hợp đê xây dựng chưa? Hy vọng mẫu nhà dưới đây sẽ là gợi ý phù hợp cho những ai đang cần tham khảo về mẫu nhỏ nhắn phù hợp với khu đất nhà mình. Công trình nhà 1 tầng được đội ngũ KTS của Nhà Đẹp 4.0 thiết cho gia đình anh Mạnh có địa chỉ tại Thái Bình. Mời quy vị cùng chiêm ngưỡng.

Mẫu nhà vườn mái Nhật với mặt tiền 12,5m
THÔNG TIN CÔNG TRÌNH NHÀ CẤP 4 MÁI NHẬT DIỆN TÍCH 11M X 12,5M
- Chủ đầu tư: anh Mạnh
- Địa điểm: Thái Bình
- Năm thiết kế: 2020
- Diện tích thiết kế: 11m x 12,5m
- Công năng: 2 phòng ngủ, 1 phòng thờ, 1 phòng khách, 1 phòng bếp.
YÊU CẦU THIẾT KẾ CHO NGÔI NHÀ VƯỜN 11X12,5M
Anh Mạnh tìm đến công ty chúng tôi với những mong muốn cho ngôi nhà của mình cụ thể như sau:
- Gia đình muốn thi công mẫu nhà vườn mái Nhật với diện tích 11m x 12,5m.
- Khu đất của gia đình khá rộng, nên muốn ngôi nhà thật sự nổi bật và sang trọng.
- Mang hơi hướng hiện đại nhưng vẫn mang một chút tân cổ, đơn giản nhưng vẫn thu hút, độc đáo.
- Công năng dự kiến thi công là 2 phòng ngủ, 1 phòng thờ, 1 phòng khách, 1 phòng bếp, khu phụ đặt tách biệt.
- Ngoại thất công trình màu nhẹ nhàng, thanh thoát, gần gũi với thiên nhiên.

Mẫu nhà vườn mái Nhật hiện đại diện tích 11x12,5m
Ngay sau khi tiếp nhận yêu cầu tư vấn thiết kế của chủ đầu tư, chúng tôi đã đến hiện trạng để khảo sát khu vực thi công công trình, từ đó đưa ra các phương án sơ bộ cho chủ đầu tư lựa chọn.
Sau khi chốt phương án tư vấn, chúng tôi tiến hành họp bàn và chốt phương án 3D chi tiết.

Lợi thế từ khuôn viên đất rộng, nên chủ đầu tư trải những mong muốn về công trình nhà mình khá thoải mái. Biệt thự vườn kích thước 11x12,5 phô được những nét đẹp rõ rệt và đặc biệt làm hài lòng cho gia chủ ngay từ những phương án đầu. Hệ mái kiểu Nhật được ưu ái sử dụng cho mẫu nhà thấp tầng. Hình thức mái Nhật hiện nay cũng được khá nhiều chủ đầu tư ưa chuộng bởi sự sang trọng và dễ kết hợp hình khối. Mái ngói màu xanh kết hợp ăn khớp với tông màu sơn trắng chủ đạo ngoại thất. Hình thức bên ngoài đơn giản, màu sơn nhẹ nhàng, tất cả tạo nên 1 công trình khiêm tốn nhưng lại ẩn trong đó sự khỏe khoắn tiềm ẩn. Phần cổ mái được sơn màu ghi đậm ngăn cách rõ rệt bố bục công trình. Dường như không quá chú trọng về chi tiết, thân nhà chỉ bật lên bằng những gờ nổi đơn giản chạy quanh cửa sổ. Lựa chọn tối ưu cho 1 căn nhà vườn hiện đại là hệ thống cửa sổ nhôm xingfa lấy sáng thuận lợi, còn lại hệ cửa chính được ưu tiên cửa gỗ sang trọng. Hiên nhà rộng rãi cùng thước cột vuông trước sảnh. Toàn bộ chân cột cho đến đế của ngôi nhà đều được ốp gạch thẻ toàn bộ, tạo cảm giác vững chãi và giữ gìn lớp sơn ngăn thấm nước.
Khuôn viên sân vườn rộng rãi là điều đóng góp không nhỏ vào thẩm mĩ kiến trúc công trình, không chỉ ở khuôn viên bên ngoài, mà ngay trước nhà chúng tôi chừa lại những ô đất nhỏ để gia chủ có thể trồng cây xanh hoa lá, giúp không gian sống của mọi người luôn thoải mái dễ chịu.
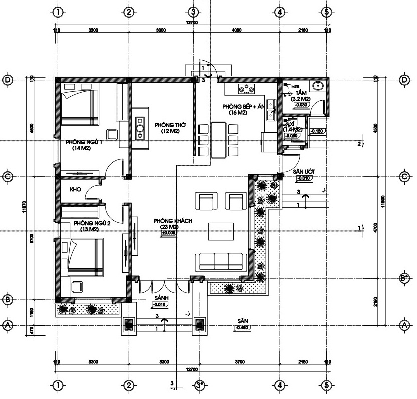
MẶT BẰNG CÔNG NĂNG NHÀ CẤP 4 MÁI THÁI DIỆN TÍCH 11Mx12,5M

Bước từ sảnh chính vào là phòng khách rộng 23m2. Không gian phòng khách có độ mở tối ưu cùng 2 hệ cửa sổ lớn, dễ dàng giao lưu với không gian bên ngoài. Phía bên trái là không gian 2 phòng ngủ có kích thước gần tương tự nhau, 1 phòng ngủ 13m2, 1 phòng rộng 14m2, và 1 phòng kho nhỏ được đặt ở giữa. Còn lại sâu vào bên trong là không gian phòng thờ nho nhỏ 12m2, được ngăn cách các không gian khác bằng hệ lam gỗ tạo được sự ấm cúng, trang nghiêm. Cuối cùng là khu phụ phía bên phải. Không gian bếp ăn rộng 16m2 được đặt thoải mái đầy đủ bàn bếp và bàn ăn. Từ khu vực bếp sẽ có lối ra sân sau và 1 lối khác đi ra khu phụ của công trình. Khu vệ sinh chung được đặt khéo léo cùng khu sân ướt theo mong muốn của gia chủ.
Và đó là công năng của một căn nhà nhỏ thích hợp cho gia đình vợ chồng mới cưới hoặc nhà có 1 đến 2 thế hệ. Hy vọng sẽ là 1 gợi ý lý tưởng cho các bạn khi đang có mong muốn xây nhà có phong cách và kích thước tương tự. Mọi ý kiến đóng góp quý vị có thể để lại dưới phần bình luận, hoặc đang cần tư vấn về thiết kế thi công, quý vị hãy liên hệ với hotline của Nhà Đẹp 4.0 để chúng tôi có thể hỗ trợ trực tiếp. Chúc các bạn thành công!
