MẪU BIỆT THỰ 2 TẦNG TẠI PHÚ THỌ
Mẫu biệt thự 2 tầng hiện đại với phối cảnh kiến trúc ấn tượng và có nhiều sáng tạo, được kiến trúc sư của Nhà Đẹp 4.0 triển khai thiết kế cho gia đình bác Bảy tại Phú Thọ. Hy vọng mẫu thiết kế nhà của chúng tôi sẽ giúp các bạn có thêm những ý tưởng thiết kế biệt thự nhà vườn mới mẻ và khoa học hơn nhé.
Với ý tưởng thiết kế được manh nha khá nhanh, kiến trúc sư đã tiếp nhận yêu cầu của khách hàng một cách nhanh chóng và kỹ càng, từ đó khảo sát hiện trạng thực tế, lên ý tưởng thiết kế sơ bộ sao cho sát nhất với mặt bằng sử dụng cũng như mong muốn của gia đình.
.jpg)
Mẫu biệt thự 2 tầng hiện đại mái Nhật diện tích 9 x 13,5m
THÔNG TIN CÔNG TRÌNH BIỆT THỰ 2 TẦNG DIỆN TÍCH 9M X 13,5M
- Chủ đầu tư: bác Bảy
- Điạ điểm: Phú Thọ
- Năm thiết kế: 2020
- Diện tích thiết kế: 9m x 13,5m
- Công năng: 3 phòng ngủ, 1 phòng khách, 1 phòng thờ, 1 phòng bếp.
YÊU CẦU THIẾT KẾ CHO BIỆT THỰ 2 TẦNG DIỆN TÍCH 9M X 13,5M
Bác Bảy tìm đến công ty chúng tôi với yêu cầu và mong muốn về ngôi nhà của mình như sau:
- Gia đình muốn thi công mẫu nhà biệt thự 2 tầng với diện tích 1 sàn hơn 100m2.
- Với thế đất nhà mình, bác Bảy muốn ngôi nhà theo phong cách chữ L của mình thực sự nổi bật, thông thoáng.
- Mang hơi hướng hiện đại, 2 sảnh, đơn giản nhưng vẫn thu hút, độc đáo.
- Công năng dự kiến thi công là 3 phòng ngủ, 1 phòng khách, 1 phòng thờ, 1 phòng bếp.
- Ngoại thất công trình có gam màu chủ đạo nhẹ nhàng,ấm áp, nổi bật.
Phối cảnh 3d mẫu biệt thự 2 tầng diện tích 9 x 13,5m
Ngay sau khi tiếp nhận yêu cầu tư vấn thiết kế của chủ đầu tư, chúng tôi đã đến hiện trạng bắt tay vào khảo sát khu vực thi công công trình, từ đó đưa ra các phương án sơ bộ cho chủ đầu tư lựa chọn.
Sau khi được tư vấn rất cụ thế kỹ càng cho công trình nhà mình, bác Bảy nhanh chóng chốt phương án chọn, và chúng tôi tiến hành họp bàn và chốt phương án 3D chi tiết.
.jpg)
Với thiết kế hệ mái Nhật độ dốc không cao, cùng 2 sảnh cho công trình sẽ giúp công trình thông thoáng hơn rất nhiều, thiết kế đơn giản nhưng vẫn có sức hút độc đáo, sang trọng.
Công trình được thiết kế hệ tam cấp cùng với 2 cột chính, giúp bố cục trở lên cân đối và thanh thoát hơn. Toàn bộ đế công trình được ốp đá không chỉ mang lại tính thẩm mĩ mà còn ngăn thấm nước giảm bớt sự ảnh hưởng cho chất lượng của công trình trong thời gian sử dụng.
Mái ngói màu ghi kết hợp cùng tone màu trắng sứ nhẹ nhàng sẽ tạo nên sự liên kết nổi bật và hơi hướng hiện đại. Ngoài ra, ngôi nhà còn được sử dụng màu xám tạo điểm nhấn trên các phần phân tầng, kẻ chỉ trên thân cột và hệ lam gỗ trên tầng 2. Thân nhà và viền cửa sổ còn được bật lên bởi những gờ đắp nổi chạy xung quanh tạo điểm nhấn mạnh cho công trình của nhà bác Bảy. Hệ lan can kính được bố trí trên tầng 2 giúp công trình trở nên hiện đại và sang trọng hơn.
MẶT BẰNG CÔNG NĂNG BIỆT THỰ 2 TẦNG DIỆN TÍCH 12M X 16M


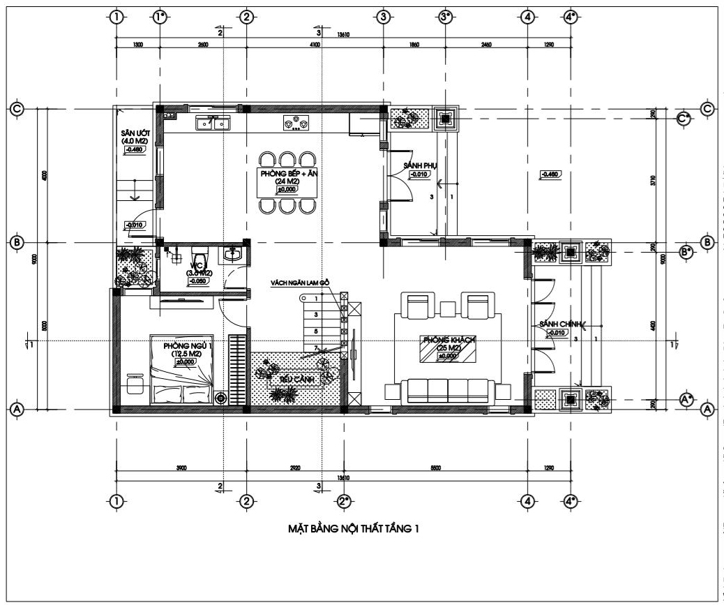
Bước từ ngoài vào trong là phòng khách thiết kế rộng rãi với diện tích 25m2. Không gian phòng khách được thiết kế tối giản, với 2 hệ cửa sổ lớn và 2 hệ cửa sổ nhỏ tạo sự thoải mái và thoáng đãng cho ngôi nhà. Đi sâu vào trong, phía bên phải là không gian phòng bếp (24m2) có sảnh riêng, tiện lợi cho việc chợ búa mà không cần phải đi qua phòng khách. Đồng thời từ phòng bếp sẽ có lối ra sân ướt (4m2) tiện cho việc chế biến thực phẩm phức tạp. Phía bên trái là 1 phòng ngủ (12,5 m2) và 1 wc chung cho cả tầng. Hệ thống cầu thang được bố trí tiểu cảnh tạo không gian xanh cũng như điểm nhấn cho ngôi nhà. Tại khu vực cầu thang sẽ được ngăn với không gian phòng khách bằng một hệ lam gỗ.
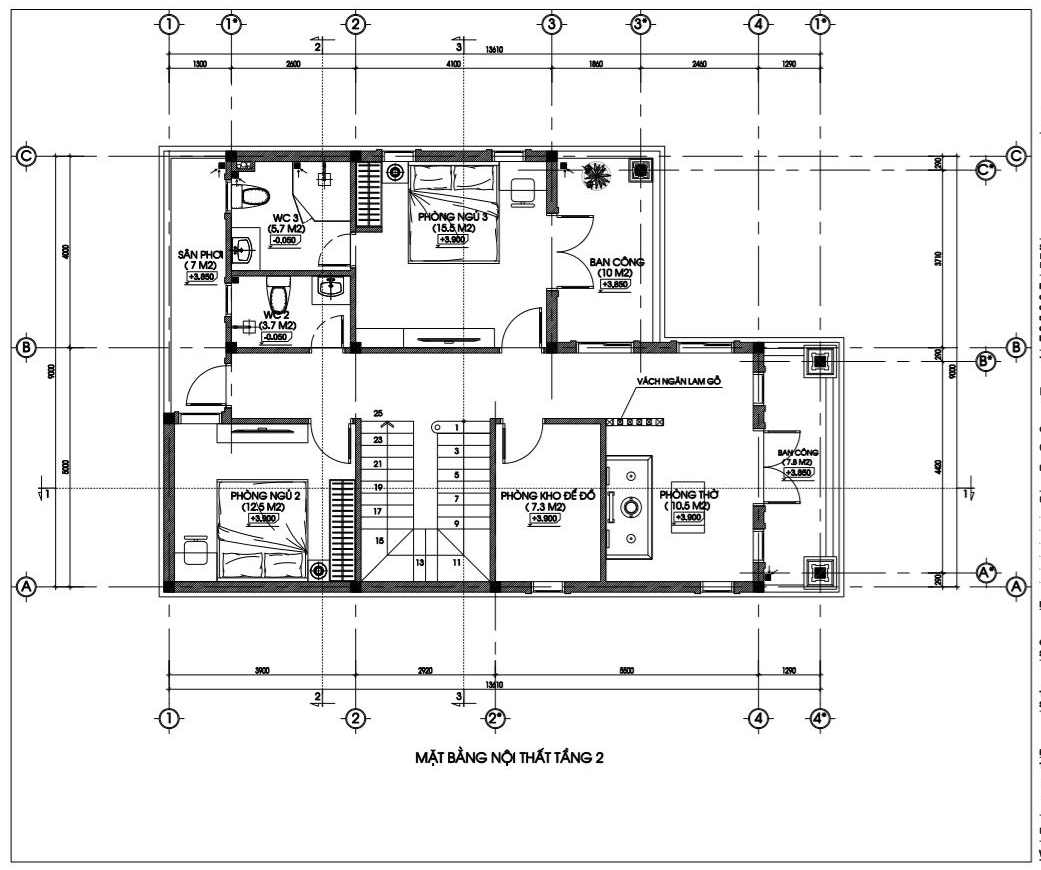
Tầng 2 được phân chia bố cục tương tự. Bước lên tầng 2, phía trước sẽ là 1 phòng ngủ master (15,5m2) với hệ ban công riêng khá rộng. Bên trái là 1 phòng ngủ kích thước tương tự phòng ngủ bên dưới. Phía bên phải sẽ là 1 phòng kho để đồ (~8m2) và một phòng thờ (10,5m2) có ban công riêng.
.jpg)
Phối cảnh bố trí công năng + nội thất biệt thự tầng 1
.jpg)
Phối cảnh bố trí công năng + nội thất biệt thự tầng 2
Và đương nhiên, tất cả các phòng trong ngôi nhà của bác Bảy đều có cửa sổ thông ra bên ngoài, điều này mang đến một không gian tràn ngập không khí trong lành, ngôi nhà như hòa mình với thiên nhiên, mang đến một cảm giác dễ chịu khi trở về nhà sau ngày dài học tập và làm việc.
Trên đây là bản thiết kế mẫu biệt thự 2 tầng diện tích 9m x 13,5m của gia đình nhà bác Bảy tại Phú Thọ. Hy vọng trên đây sẽ là gợi ý phù hợp cho các bạn khi đang muốn xây dựng ngôi nhà phong cách và kích thước tương tự. Cảm ơn và chúc các bạn thành công!
