BT2021016| BIỆT THỰ HAI TẦNG MÁI THÁI BÁN TÂN CỔ ẤN TƯỢNG VÀ SANG TRỌNG
Mẫu thiết kế biệt thự 2 mái thái bán tân cổ điển này có phối cảnh hút hồn người xem ngay từ cái nhìn đâu tiên. Mặc dù không quá sang trọng, uy nghi bề thế như các kiểu kiến trúc cổ điển. Nhưng lại toát lên được vẻ tao nhã thanh cao, lôi cuốn ánh mắt cùng thiện cảm con người. Chính điều này đã làm hài lòng không ít các vị khách đang tìm và muốn xây nhà.
Phối cảnh mẫu thiết kế biệt thự 2 tầng mái thái bán tân cổ điển
Nhìn vào phối cảnh mẫu thiết kế biệt thự 2 tầng bán tân cổ điển này; Ta cảm nhận được sự vững chãi, mạnh mẽ và cũng không thiếu phần sang trọng.
.jpg)
Phối cảnh 3D A Tài - Hưng Yên
Mái thái có những ưu điểm nổi bật như chống nóng, chống thấm rất tốt, rất phù hợp với điều kiện môi trường thời tiết tại Việt Nam. Không chỉ thế nó còn khá là phong phú về mặt hình thức, đem lại nhiều kiểu dáng và vẻ đẹp khác nhau.Ngôi nhà 2 tầng của gia đình anh Tài được thiết kế đơn giản, không cầu kì hoa văn đắp vẽ. Vẻ đẹp sang trọng của mẫu biệt thự này đến từ những đường nét kiến trúc cổ điển phào chỉ nhẹ nhàng được KTS phối hợp hài hòa, cân đối với hệ mái thái.
.jpg)
3D A Tài - Hưng Yên
YÊU CẦU THIẾT KẾ CHO BIỆT THỰ 2 TẦNG DIỆN TÍCH 8M X 17M
Anh Tài tìm đến công ty chúng tôi với yêu cầu và mong muốn về ngôi nhà của mình như sau:
- Gia đình muốn thi công mẫu nhà biệt thự 2 tầng với diện tích xây dựng hơn 100m2.
- Với thế đất nhà mình, phát triển theo chiều sâu, anh Tài muốn ngôi nhà của mình thực sự nổi bật.
- Mang hơi hướng hiện đại, nhưng pha một chút tân cổ, đơn giản nhưng vẫn thu hút, độc đáo.
- Công năng dự kiến thi công là 4 phòng ngủ, 1 phòng khách, 1 phòng thờ, 1 phòng bếp, 1 gara
- Ngoại thất công trình có gam màu chủ đạo nhẹ nhàng, nổi bật.
Ngay sau khi tiếp nhận yêu cầu tư vấn thiết kế của chủ đầu tư, chúng tôi đã đến hiện trạng bắt tay vào khảo sát khu vực thi công công trình, từ đó đưa ra các phương án sơ bộ cho chủ đầu tư lựa chọn.
Sau khi được tư vấn rất cụ thế kỹ càng cho công trình nhà mình, anh Long nhanh chóng chốt phương án chọn, và chúng tôi tiến hành họp bàn và chốt phương án 3D chi tiết.

Phối cảnh 3d mẫu biệt thự mái thái bán tân cổ 8,2m x 17,1m
MẶT BẰNG CÔNG NĂNG BIỆT THỰ 2 TẦNG DIỆN TÍCH 8M X 17M

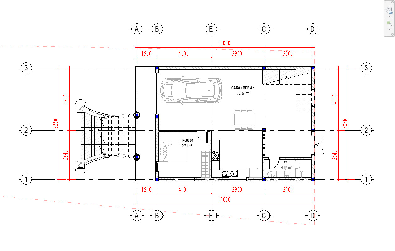
Mặt bằng bố trí công năng tầng hầm mẫu biệt thự 2 tầng diện tích 8,2m x 17,1m
.jpg)
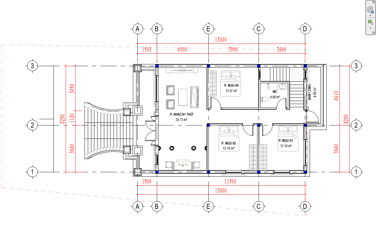
Mặt bằng bố trí công năng tầng 1 mẫu biệt thự 2 tầng diện tích 8,2m x 17,1m

Phối cảnh bố trí công năng + nội thất biệt thự tầng hầm

Phối cảnh bố trí công năng + nội thất biệt thự tầng 1
