BT2021008| BIỆT THỰ 2 TẦNG MÁI NHẬT ĐẸP SAY MÊ TẠI HẢI PHÒNG
Hiện nay những mẫu biệt thự 2 tầng không chỉ là kiến trúc đơn giản, mà nó còn đa dạng hơn về phong cách kiến trúc, màu sắc nội ngoại thất. Với nhiều mẫu nhà 2 tầng đẹp có không gian sinh hoạt rộng rãi, thoải mái phù hợp với những gia đình có nhiều thế hệ diện tích 120m2. Hôm nay Nhà Đẹp 4.0 xẽ giới thiệu với mọi người mẫu biệt thự 2 tầng hiện đại mang nét trẻ trung, hình khối đơn giản được thiết kế hộp khối giúp tối ưu không gian ở được chúng tôi thiết kế cho gia đình anh Hùng tại Hải Phòng.
.jpg)
Phối cảnh 3D mẫu biệt thự 2 tầng mái Nhật diện tích 8,5x12,2m
THÔNG TIN CÔNG TRÌNH BIỆT THỰ 2 TẦNG MÁI NHẬT DIỆN TÍCH 8,5M X 12,2M
Chủ đầu tư: Anh Hùng
Địa điểm: Hải Phòng
Năm thiết kế: 2021
Diện tích thiết kế: 8,5m x 12,2m
Công năng: 4 phòng ngủ,1 phòng khách kết hợp phòng thờ, 1 phòng bếp, 4 WC.
YÊU CẦU THIẾT KẾ CHO BIỆT THỰ 2 TẦNG MÁI NHẬT DIỆN TÍCH 8,5M X 12,2M
Anh Hùng tìm đến công ty chúng tôi với những mong muốn cho ngôi nhà của mình cụ thể như sau:
- Gia đình muốn thi công mẫu nhà biệt thự 2 tầng mái Nhật với diện tích 8,5m x 12,2m.
- Gia đình muốn ngôi nhà thật sự nổi bật và sang trọng, mang hơi hướng hiện đại, nhưng vẫn mang chút tân cổ, đơn giản nhưng vẫn thu hút, độc đáo.
- Công năng dự kiến thi công là 4 phòng ngủ, 1 phòng thờ kết hợp 1 phòng khách, phòng bếp và wc chung thiết kế thông thoáng.
- Ngoại thất công trình có màu sắc khỏe khoắn, gần gũi với thiên nhiên.
.jpg)
Phối cảnh 3D mẫu biệt thự 2 tầng mái Nhật diện tích 8,5x12,2m
Lựa chọn tông màu trắng làm chủ đạo kết hợp với mái nhật tông ghi xám. Phần sân nhà lát gạch xám đồng độ với công trình góp phần tôn lên được tổng thể sự bề thế và sang trọng của kiến trúc. Có lẽ sự kết hợp màu sắc này đã không còn quá xa lạ với nhiều bản thiết kế nhà hiện nay. Tuy nhiên khi sử dụng cho ngôi nhà 2 tầng mái nhật thì vẫn thể hiện được điểm nhấn riêng.
Kiến trúc đậm chất hiện đại cùng với mái nhật khiến cho ngôi nhà có được một vẻ đẹp thanh thoát, cao ráo và lại thoáng mát. Các mảng hình học được kết hợp một cách khéo léo có chủ đích gây được ấn tượng mạnh. Chúng ta sẽ không cảm thấy bị nhàm chán khi ngôi nhà chỉ được xây dựng bằng những bức tường phẳng nữa.
Cửa chính của ngôi nhà được thiết kế bằng cửa gỗ rất chắc chắn và sang trọng. Bên cạnh đó thì các cửa sổ được bố trí đều ở xung quanh ngôi nhà. Tạo không gian mở tối đa giữa bên trong và bên ngoài mẫu nhà ở của bạn. Vật liệu dùng cho các cửa sổ đó là dòng nhôm kính với khung đen. Vừa đảm bảo được tính hiện đại, sang trọng và bắt kịp xu thế. Trông thiết kế nhà 2 tầng mái Nhật 2021 của bạn sẽ nhẹ nhàng và thanh thoát hơn thay vì tất cả hệ thống cửa đều làm bằng gỗ.
Mẫu nhà 2 tầng mái nhật đẹp 2021 còn có thiết kế một cửa phụ ở phía bên phải của ngôi nhà. Điều này giúp cho việc đi lại, di chuyển được thuận tiện hơn. Đồng thời chúng ta cũng có thể tận dụng tối đa ánh sáng từ bên ngoài vào bên trong ngôi nhà.
Trên tầng 2 có bố trí riêng một khu ban công không lợp mái mà chỉ thiết kế với các thanh ngang cách đều nhau. Tại đây thì gia chủ có thể dễ dàng sử dụng để trồng cây cảnh, nhất là có những loại cây leo giàn để tạo không gian xanh cho ngôi nhà. Cũng tương tự như một khoảng giếng trời giúp đối lưu không khí, ánh sáng. Đưa ánh sáng thiên nhiên và những cơn gió mát đến với ngôi nhà của bạn.
Với góc nhìn này thì bạn có thể thấy được rõ hơn độ rộng, bề thế của ngôi nhà. Phần mái nhật thực sự nổi bật với từng lớp từng lớp chồng lên nhau tạo nên hiệu ứng không gian thực sự lạ mắt. Mái cũng được thiết kế đổ dài ra bốn phía giúp che mưa nắng hiệu quả. Hơn nữa không gian cũng thoáng mát hơn và rộng rãi hơn.
.jpg)
Phối cảnh 3D mẫu biệt thự 2 tầng mái Nhật diện tích 8,5x12,2m
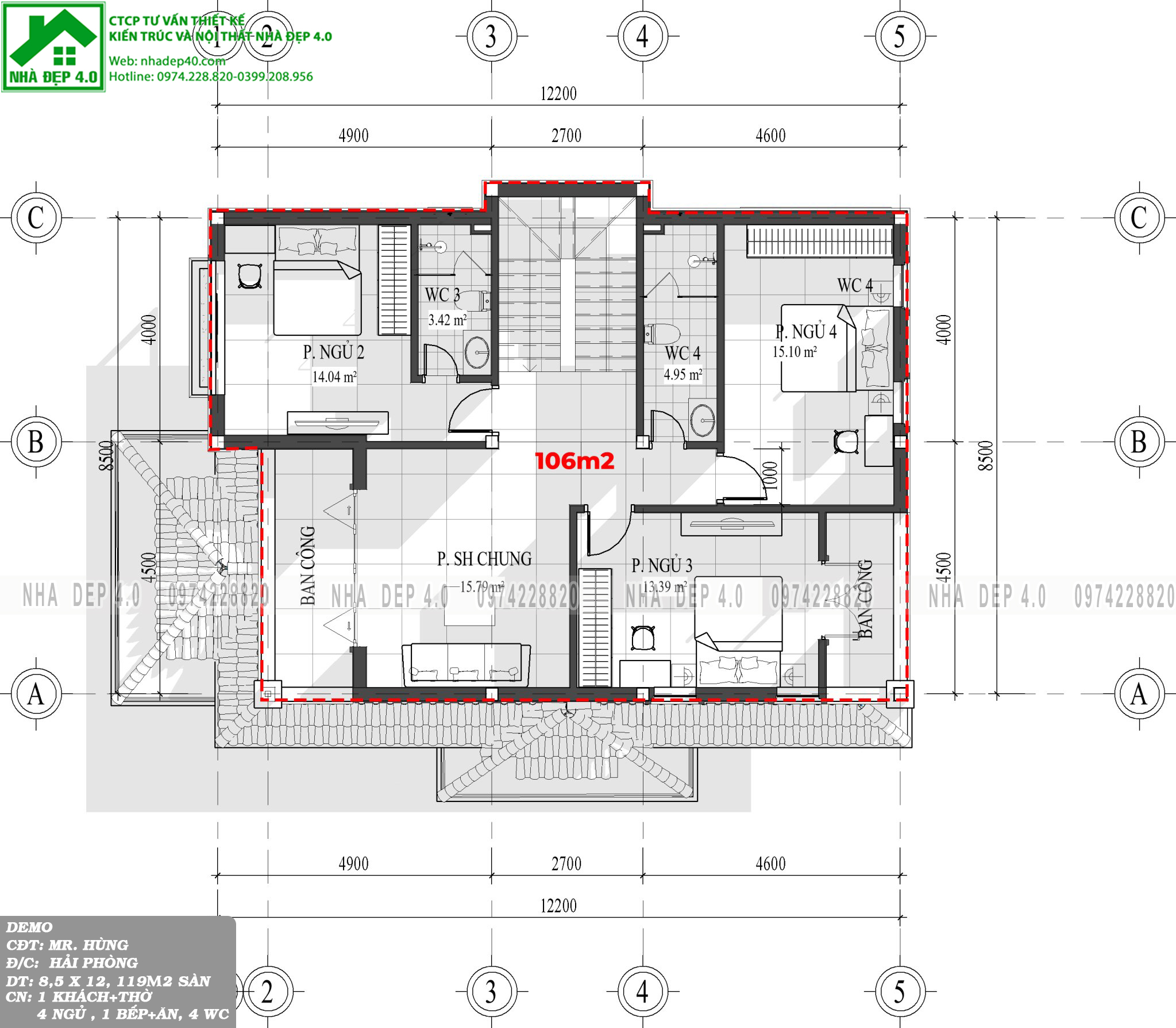
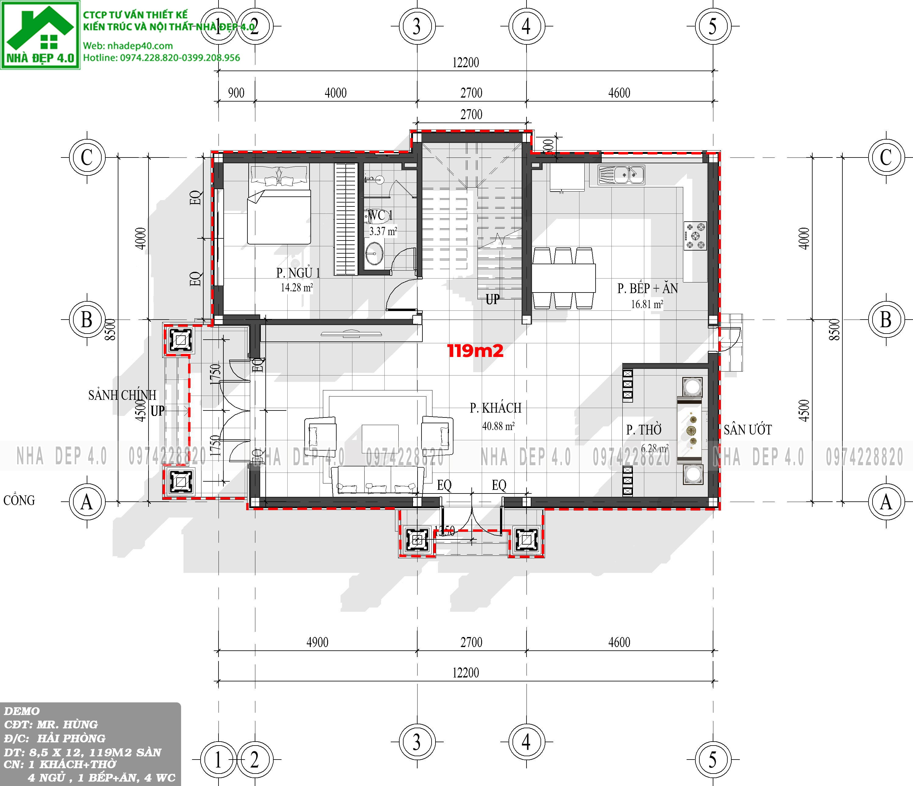
MẶT BẰNG CÔNG NĂNG BIỆT THỰ 2 TẦNG MÁI NHẬT DIỆN TÍCH 8,5M X 12,2M
.jpg)
Phối cảnh bố trí công năng + nội thất tầng 1 biệt thự 2 tầng mái Nhật diện tích 8,5m x 12,2m
.jpg)
Phối cảnh bố trí công năng + nội thất tầng 2 biệt thự 2 tầng mái Nhật diện tích 8,5m x 12,2m
Bước từ ngoài vào trong là phòng khách thiết kế rộng rãi với diện tích 40m2 rộng rãi. Không gian phòng khách được thiết kế tối giản, với 2 hệ cửa chính bản rộng tạo sự thoải mái và thoáng đãng cho ngôi nhà.
Tiếp đó là không gian phòng thờ (6,2m2) được đặt phía cuối nhà, tiện lợi cho việc hương khói của gia đình và khách khứa khi đến thăm nhà. Bên trái cầu thang sẽ là 1 phòng ngủ (17m2) có wc riêng và bên phải là khu vực bếp (16,8m2).
Tầng 2 được phân chia với bên trái cầu thang là 1 phòng ngủ và không gian sinh hoạt chung, còn lại phía bên phải là 2 phòng ngủ còn lại.
Trên đây là bản thiết kế mẫu nhà vườn 1 tầng diện tích 8m x 13m của gia đình nhà anh Long tại Hải Phòng. Hy vọng trên đây sẽ là gợi ý phù hợp cho các bạn khi đang muốn xây dựng ngôi nhà phong cách và kích thước tương tự. Cảm ơn và chúc các bạn thành công!
