BT2021007| BIỆT THỰ MÁI NHẬT 2 TẦNG QUẤN HÚT, SANG TRỌNG TẠI LIÊN MẠC, MÊ LINH
Các mẫu biệt thự với thiết kế giản dị, độc đáo và nhẹ nhàng là một trong những xu hướng ở Việt Nam hiện nay. Chúng ta thường gặp nhất là các mẫu biệt thự như mái Nhật với những chất liệu khá đơn giản , bình dị nhưng rất thanh lịch. Về mỹ quan, những mẫu thiết kế biệt thự mái Nhật 2 tầng được khá nhiều chủ nhà chọn lựa.
Căn biệt thự lôi cuốn người nhìn từ đường nét hình khối cho đến màu sắc hòa quyện của không gian ngoại thất. Không gian kiến trúc mẫu biệt thự mái Nhật 2 tầng 4 phòng ngủ vô cùng ấn tượng và lãng mạn. Mẫu biệt thự này nổi lên giữa không gian với sự sang trọng, thanh tao mà hiếm mẫu thiết kế nào có được. Nhìn vào phối cảnh của căn biệt thự chúng ta có thể thấy tuy không quá lộng lẫy, xa hoa nhưng lại có được sức hút kỳ lại cho người nhìn. Mẫu thiết kế biệt thự này cùng với những hình khối vuông vức, mạnh mẽ nhưng trong kiến trúc trong kiến trúc dường như hình khối lại mang vẻ dứt khoát, phóng khoáng hơn. Thông qua hình khối này chúng ta đã phần nào cảm nhận được tính cách của gia chủ.
.jpg)
Mẫu biệt thự 2 tầng hiện đại mái Nhật diện tích 11,3m x 13,2m
Bên cạnh hình khối thì những đường nét trang trí, các đường gờ được đắp nổi để tạo nên điểm nhấn cũng như tạo đường nét hình khối cho ngoại thất. Sử dụng các đường nét trang trí đã giúp tô điểm thêm nét đẹp của kiến trúc biệt thự này. Chủ đầu tư của mẫu thiết kế biệt thự mái Nhật 2 tầng 4 phòng ngủ không quá đặt nặng yêu cầu về thiết kế thẩm mỹ, mà có yêu cầu cũng khá nhẹ nhàng, đơn giản. Cũng chính vì vậy mà mặt tiền của căn biệt thự được thực hiện mang vẻ đẹp khá đơn giản, các chi tiết tường, cột hay những vật liệu sử dụng ốp tường ngoại thất của công trình khá đơn giản và sang trọng, không quá cầu kỳ nhưng cũng đủ tọa nên được vẽ đẹp cho ngoại thất.
THÔNG TIN CÔNG TRÌNH BIỆT THỰ 2 TẦNG DIỆN TÍCH 11,3M X 13,2M
- Chủ đầu tư: chú Đề
- Điạ điểm: Xa Mạc - Liên Mạc - Mê Linh
- Năm thiết kế: 2021
- Diện tích thiết kế: 11,3m x 13,2m
- Công năng: 4 phòng ngủ, 1 phòng khách + thờ, 1 Bếp + ăn, 3 wc
YÊU CẦU THIẾT KẾ CHO BIỆT THỰ 2 TẦNG DIỆN TÍCH 11,3M X 13,2M
Anh Dự tìm đến công ty chúng tôi với yêu cầu và mong muốn về ngôi nhà của mình như sau:
- Gia đình muốn thi công mẫu nhà biệt thự 2 tầng với diện tích xây dựng hơn 100m2.
- Với thế đất nhà mình, anh Dự muốn ngôi nhà của mình thực sự nổi bật.
- Mang hơi hướng hiện đại, đơn giản nhưng vẫn thu hút, độc đáo.
- Công năng dự kiến thi công là 4 phòng ngủ, 1 phòng khách, 1 phòng thờ, 1 Bếp ăn
- Ngoại thất công trình có gam màu chủ đạo khỏe khoắn, nổi bật.
.jpg)
Phối cảnh 3d mẫu biệt 2 tầng hiện đại mái Nhật diện tích 11,3m x 13,2m
Ngay sau khi tiếp nhận yêu cầu tư vấn thiết kế của chủ đầu tư, chúng tôi đã đến hiện trạng bắt tay vào khảo sát khu vực thi công công trình, từ đó đưa ra các phương án sơ bộ cho chủ đầu tư lựa chọn.
Sau khi được tư vấn rất cụ thế kỹ càng cho công trình nhà mình, anh Dự nhanh chóng chốt phương án chọn, và chúng tôi tiến hành họp bàn và chốt phương án 3D chi tiết.
Phối cảnh 3d mẫu biệt 2 tầng hiện đại mái Nhật diện tích 11,3m x 13,2m
Công trình được thiết kế hệ ngũ cấp cùng với 2 cột chính. Thân nhà còn được bật lên bởi những gờ đắp nổi chạy xung quanh thân nhà và tạo điểm nhấn mạnh cho các hệ thống cửa sổ. Đáp ứng nhu cầu thông thoáng gần gũi với thiên nhiên, chúng tôi bố trí trên tầng 2 cho nhà chú Đề một khoảng ban công rộng với dàn hoa phía trên. Vừa đóng vai trò là một ban công, vừa là một sân chơi với nhiều cây hoa cây cảnh tạo sự thoải mái và trong lành sau những giờ làm việc và học tập mệt mỏi.
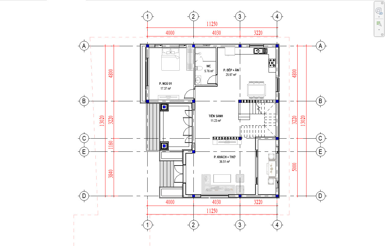
MẶT BẰNG CÔNG NĂNG BIỆT THỰ 2 TẦNG DIỆN TÍCH 11,3M X 13,2M

Mặt bằng bố trí công năng tầng 1 mẫu biệt thự 2 tầng diện tích 11,3 x 13,2m

Mặt bằng bố trí công năng tầng 2 mẫu biệt thự 2 tầng diện tích 11,3 x 12,3m
.jpg)
Mặt cắt 3D bố trí công năng tầng 1 mẫu biệt thự 2 tầng diện tích 11,3 x 12,3m
.jpg)
Mặt cắt 3D bố trí công năng tầng 2 mẫu biệt thự 2 tầng diện tích 11,3 x 12,3m
Tất cả các phòng trong ngôi nhà của chú Đề đều có cửa sổ thông ra bên ngoài, điều này mang đến một không gian tràn ngập không khí trong lành, ngôi nhà như hòa mình với thiên nhiên, mang đến một cảm giác dễ chịu khi trở về nhà sau ngày dài học tập và làm việc.
Trên đây là bản thiết kế mẫu nhà vườn 2 tầng diện tích 11,3m x 13,2m của gia đình nhà chú Đề tại Liên Mạc - Mê Linh. Hy vọng trên đây sẽ là gợi ý phù hợp cho các bạn khi đang muốn xây dựng ngôi nhà phong cách và kích thước tương tự. Cảm ơn và chúc các bạn thành công!
