BT2021006| BIỆT THỰ MÁI NHẬT 2 TẦNG ĐỐN TIM CHỦ ĐẦU TƯ TẠI YÊN BÁI
Biệt thự mái Nhật một trong số những loại hình kiến trúc được chủ đầu tư ưa chuộng trong thời gian gần đây. Loại hình kiến trúc này có nguồn gốc từ đất nước mệnh danh là “xứ sở mặt trời mọc”, được thiết kế chủ yếu có sự kết hợp nhà ở và hệ thống sân vườn xanh mát, đặc biệt thể hiện được những nét độc đáo, phá cách trong lối thiết kế phong cách Nhật Bản mà vẫn đảm bảo được tính sang trọng, đẳng cấp cho ngôi nhà.
Sau đây là 1 trong những mẫu Biệt thự mái Nhật được xếp hạng cao nhất của Nhà Đẹp 4.0, mẫu biệt thự 2 tầng mái nhật của gia đình chú Thao tại Yên Bái là một minh chứng cho những nét đẹp sang trọng, tinh tế. Hãy cùng khám phá những hình ảnh phối cảnh 3D và mặt bằng công năng mẫu nhà đẹp này nhé.
.jpg)
Mẫu biệt thự 2 tầng hiện đại mái Nhật diện tích 11,2m x 13,5m
THÔNG TIN CÔNG TRÌNH BIỆT THỰ 2 TẦNG DIỆN TÍCH 11,2M X 13,5M
- Chủ đầu tư: chú Thao
- Điạ điểm: Lục Yên - Yên Bái
- Năm thiết kế: 2021
- Diện tích thiết kế: 11,2m x 13,5m
- Công năng: 4 phòng ngủ, 1 phòng khách, 1 phòng thờ, 1 phòng bếp.
.jpg)
Mẫu biệt thự 2 tầng hiện đại mái Nhật diện tích 11,2m x 13,5m
Sở hữu một mảnh đất rộng rãi, chú Thao mong muốn xây dựng một ngôi nhà phù hợp với xu hướng hiện đại. Gia đình yêu cầu bố trí công năng khá đơn giản với 2 tầng gồm 1 phòng khách, 4 phòng ngủ, 1 phòng thờ, 1 sân chơi và phòng bếp ăn.
Với yêu cầu tư vấn thiết kế được nhận ở trên, đội ngũ KTS Nhà Đẹp 4.0 đã nhanh chóng lên phương án thiết kế mặt bằng công năng và phối cảnh 3D cho ngôi nhà 2 tầng với bộ hồ sơ chi tiết gồm đầy đủ 4 phần: kiến trúc, kết cấu, điện nước và dự toán khiến gia chủ vô cùng hài lòng, ưng ý ngay từ lần trao đổi đầu tiên.
.jpg)
Mẫu biệt thự 2 tầng hiện đại mái Nhật diện tích 11,2m x 13,5m
Ngôi biệt thự mái Nhật 2 tầng xinh xắn được thiết kế với diện tích khoảng 110m2, đơn giản và được tối giản các chi tiết trang trí. Chính nhờ vậy mà không gian ngoại thất của ngôi nhà này được thiết kế vô cùng cân đối, hài hòa nhưng vẫn toát lên được vẻ hiện đại, sang trọng nhờ các nguyên vật liệu cao cấp trang trí không gian mặt tiền mà ai nhìn vào cũng đều bị thu hút không muốn rời mắt.
Hệ thống sân vườn được chủ đầu tư khá chú trọng, do đó KTS đã trang trí khéo léo với quy hoạch rõ ràng, đẹp mắt, khu vườn hoa nhỏ xinh trước sảnh nhà. Không gian tiểu cảnh như sáng bừng bởi cách tô điểm màu sắc mới lạ nhằm mang đến không khí trong lành, gần gũi với thiên nhiên cũng như giúp tổng thể công trình nhà hiện đại thêm sinh động hơn.
Nét đẹp ấn tượng ở công trình này là sự phối hợp màu sắc trên nền công trình, ngoài những mảng màu sáng chúng tôi bố trí các khối màu tối của gạch thẻ để tăng chiều sâu cho công trình.
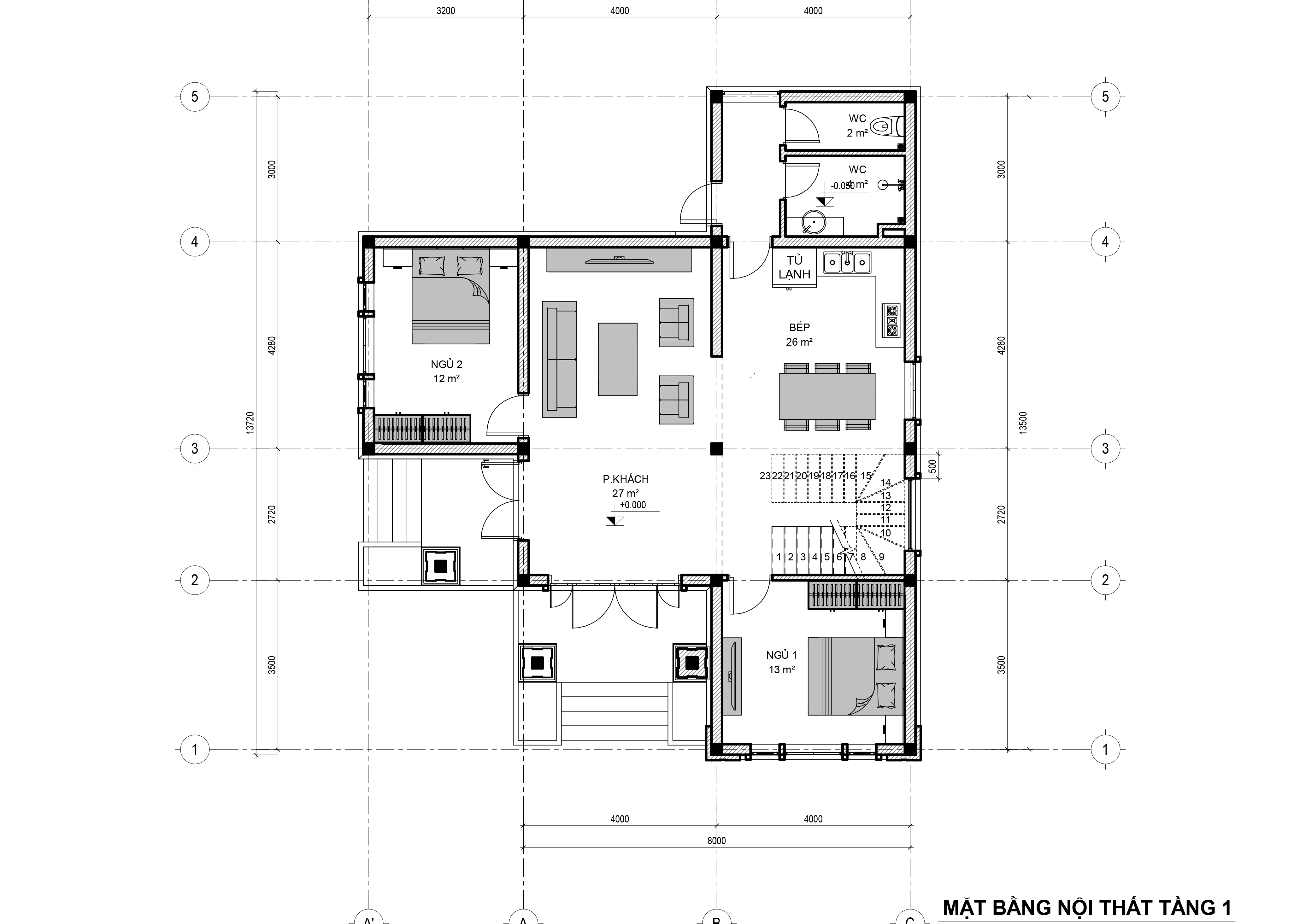
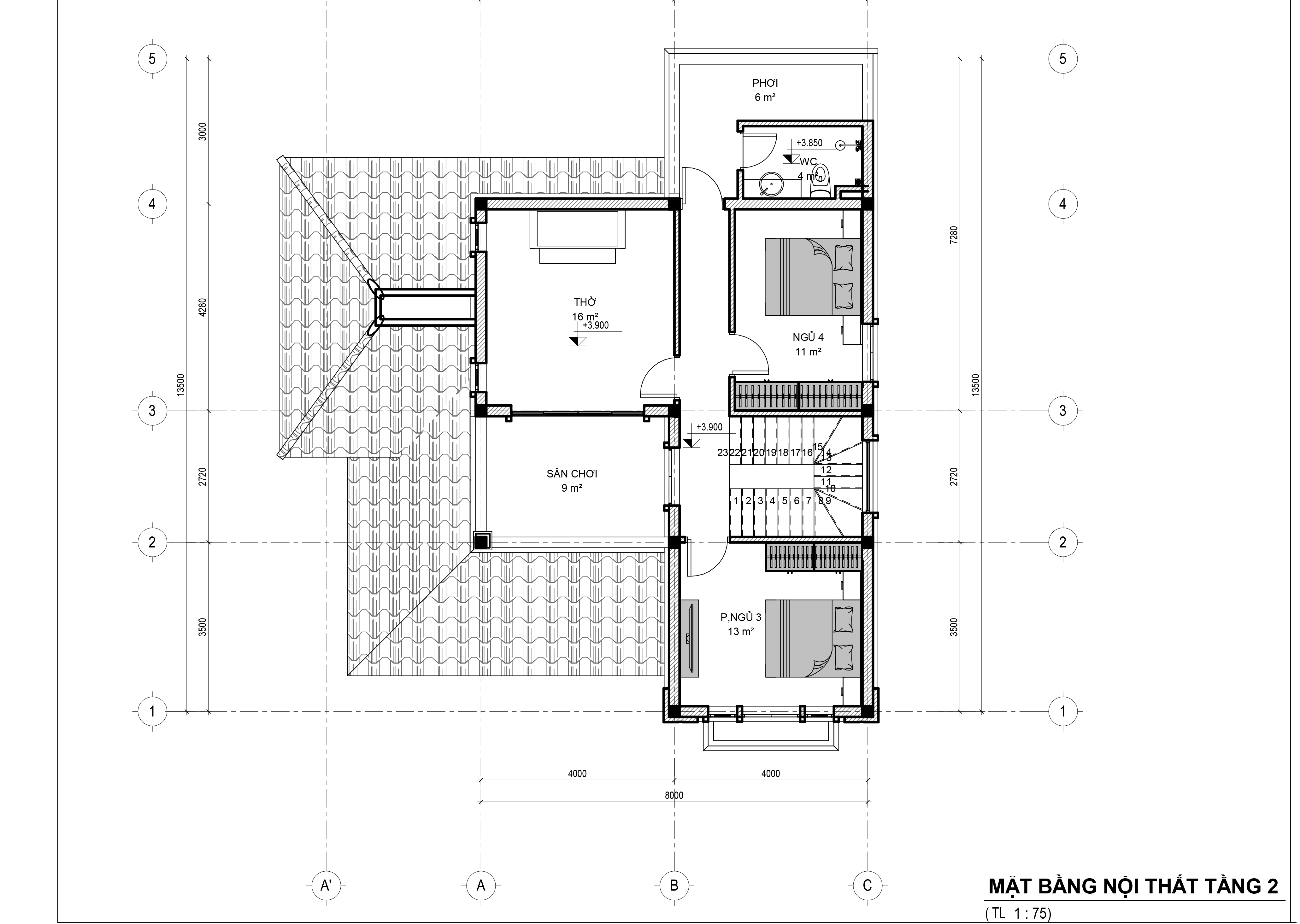
MẶT BẰNG CÔNG NĂNG BIỆT THỰ 2 TẦNG DIỆN TÍCH 11,2M X 13,5M
.jpg)
Mặt bằng bố trí công năng tầng 1 mẫu biệt thự 2 tầng diện tích 11,2m x 13,5m
.jpg)
Mặt bằng bố trí công năng tầng 2 mẫu biệt thự 2 tầng diện tích 11,2m x 13,5m
Từ sảnh chính bước vào là không gian phòng khách không quá rộng khoảng 27m2, kết hợp với phần đại sảnh khiến cho khu vực này sang trọng hơn rất nhiều.
Tại đây KTS bố trí 1 bộ sofa cao cấp và kệ tivi lớn cùng các chi tiết trang trí khác được sắp xếp một cách chỉnh chu đẹp mắt khiến các vị khách đến chơi không ngừng trầm trồ khen ngợi.
Đi sâu vào bên trong là không gian phòng bếp với diện tích rộng rãi 26m2. Khu vệ sinh chung có vòi tắm đứng hiện đại được đặt ở cuối nhà.
Còn lại là 2 phòng ngủ gồm đầy đủ tiện nghi như tivi, kệ trang điểm, tủ đứng,....
KTS Nhà Đẹp 4.0 luôn áp dụng nguyên tắc "nhất vị, nhị hướng, tam phong thủy" khi tư vấn thiết kế công năng cho gia chủ nhằm đem đến những công trình hoàn hảo nhất từ mọi góc nhìn.
.jpg)
Mặt cắt 3D bố trí công năng tầng 1 mẫu biệt thự 2 tầng diện tích 11,2m x 13,5m

Mặt cắt 3D bố trí công năng tầng 2 mẫu biệt thự 2 tầng diện tích 11,2m x 13,5m
Tầng 2 được phân chia bố cục gồm 2 phòng ngủ với 1 phòng thờ. Ngoài ra còn có 1 sân phơi và 1 sân chơi ( 9m2).
Và đương nhiên, tất cả các phòng trong ngôi nhà của anh Yên đều có cửa sổ thông ra bên ngoài, điều này mang đến một không gian tràn ngập không khí trong lành, ngôi nhà như hòa mình với thiên nhiên, mang đến một cảm giác dễ chịu khi trở về nhà sau ngày dài học tập và làm việc.
Trên đây là bản thiết kế mẫu nhà vườn 1 tầng diện tích 11,4m x 12,2m của gia đình nhà anh Yên tại Mê Linh. Hy vọng trên đây sẽ là gợi ý phù hợp cho các bạn khi đang muốn xây dựng ngôi nhà phong cách và kích thước tương tự. Cảm ơn và chúc các bạn thành công!
