BT2021005| BIỆT THỰ HIỆN ĐẠI 2 TẦNG NỔI BẬT NHẤT TẠI BẮC GIANG
Nhiều năm trở lại đây là chứng kiến sự thay đổi liên tục của xu hướng thiết kế nhà ở. Xét riêng về phong cách thiết kế, những ngôi biệt thự hiện đại hiện ngày càng được gia chủ lựa chọn thiết kế và thi công bởi đây là loại hình công trình không bị bó buộc theo bất kỳ khuôn mẫu nào nên các kiến trúc sư có thể thỏa sức sáng tạo vận dụng tinh hoa kiến trúc để thổi hồn cho công trình.
Thiết kế biệt thự hiện đại thường chú trọng đến sự đơn giản, sang trọng, khỏe khoắn, thông thoáng, và gần gũi với thiên nhiên. Chính phong cách đơn giản vừa làm nổi bật chiều sâu của căn mẫu biệt thự đẹp phong cách hiện đại lại vừa tạo ra vẻ ngoài bắt mắt khiến người khác tò mò và mong muốn khám phá những điều thú vị bên trong.
Mẫu biệt thự 2 tầng hiện đại với phối cảnh kiến trúc ấn tượng và có nhiều sáng tạo, được kiến trúc sư của Nhà Đẹp 4.0 triển khai thiết kế cho gia đình anh Tông tại Bắc Giang. Hy vọng mẫu thiết kế nhà của chúng tôi sẽ giúp các bạn có thêm những ý tưởng thiết kế cho mái ấm tương lai của gia đình mình.
Với ý tưởng thiết kế được tiếp nhận khá nhanh, kiến trúc sư đã tiếp nhận yêu cầu của khách hàng một cách nhanh chóng và kỹ càng, từ đó khảo sát hiện trạng thực tế, lên ý tưởng thiết kế sơ bộ sao cho sát nhất với mặt bằng sử dụng cũng như mong muốn của gia đình.
.jpg)
Mẫu biệt thự 2 tầng hiện đại diện tích 11m x 15m
YÊU CẦU THIẾT KẾ CHO BIỆT THỰ 2 TẦNG DIỆN TÍCH 11M X 15M
Anh Tông tìm đến công ty chúng tôi với yêu cầu và mong muốn về ngôi nhà của mình như sau:
- Gia đình muốn thi công mẫu nhà biệt thự 2 tầng với diện tích 1 sàn hơn 100m2.
- Với thế đất nhà mình, anh Tông muốn ngôi nhà theo phong cách hiện đại thực sự nổi bật, thông thoáng.
- Mang hơi hướng hiện đại, đơn giản nhưng vẫn thu hút, độc đáo.
- Công năng dự kiến thi công là 4 phòng ngủ, 1 phòng khách, 1 phòng thờ, 1 phòng bếp, 1 phòng shc.
- Ngoại thất công trình có gam màu chủ đạo nhẹ nhàng,ấm áp, nổi bật.
.jpg)
Mẫu biệt thự 2 tầng hiện đại diện tích 11m x 15m
.jpg)
Mẫu biệt thự 2 tầng hiện đại diện tích 11m x 15m
Tọa lạc trên một khu đất rộng lớn, đội ngũ kiến trúc sư Nhà Đẹp 4.0 đã tiến hành khảo sát khu đất, hướng đất, diện tích, trao đổi với chủ đầu tư về ý tưởng và công năng thiết kế để lên phương án cho ngôi biệt thự 2 tầng phong cách hiện đại. Các phương án lần lượt được triển khai và chỉnh sửa theo ý của chủ đầu tư, hợp lý nhất là phương án cuối mà gia chủ hài lòng nhất, đáp ứng được thẩm mỹ, phong thủy và nhu cầu công năng của chủ đầu tư. Ngôi biệt thự được thiết kế kiến trúc mặt tiền thoáng, sử dụng vật liệu kính làm cửa giúp view ra bên ngoài dễ dàng và dễ lấy sáng. Bên cạnh đó, không gian bên trong được phân chia diện tích và công năng hợp lý. Từ mọi góc nhìn, ngôi biệt thự đều dễ dàng bị hút mắt bởi thiết kế hiện đại tinh tế này. Đội ngũ kiến trúc sư Nhà Đẹp 4.0 đều khéo léo sử dụng kính cường lực mảng khối lớn đầy ấn tượng khi toàn bộ cửa sổ, cửa ra vào đều được thiết kế kính mảng lớn cho tầm nhìn dễ dàng ra không gian ngoại thất bên ngoài đồng thời giúp lấy ánh sáng tối đa cho không gian nội thất bên trong, kính cường lực khỏe hiện đại cũng được sử dụng làm lan can bảo vệ ấn tượng ở tầng 2. Tiếp theo đây là mặt cắt công năng các tầng mà chủ đầu tư đã quyết định thiết kế được đảm bảo về phong thủy, hướng sáng, hướng gió và thiết kế đảm bảo sự tiện lợi và sang trọng, mời bạn đọc và quý khách hàng tham khảo thêm.
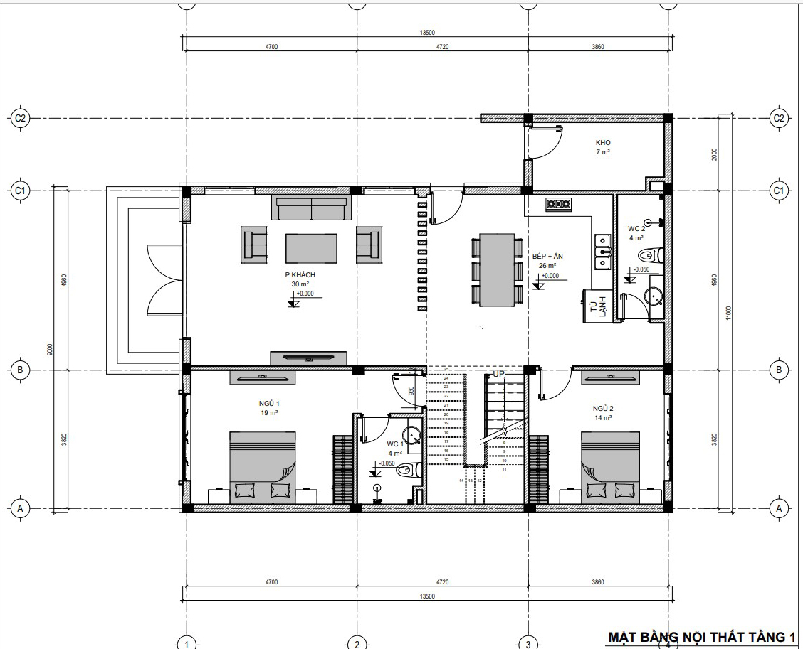
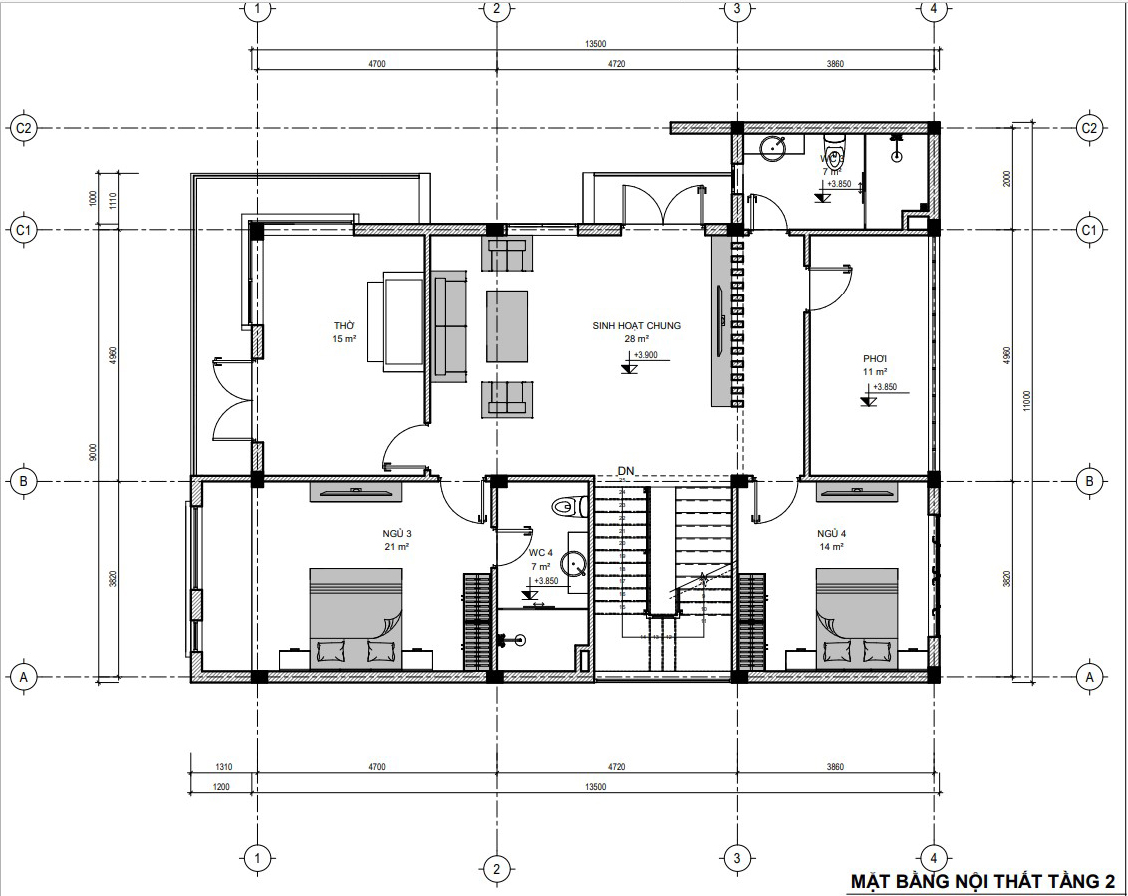
MẶT BẰNG CÔNG NĂNG BIỆT THỰ 2 TẦNG DIỆN TÍCH 11M X 15M
.jpg)
Mặt cắt nội thất tầng 1.
.jpg)
Mặt cắt nội thất tầng 2.
.jpg)
Mặt cắt 3D nội thất tầng 1.
.jpg)
Mặt cắt 3D nội thất tầng 2.
Mọi không gian trong ngôi nhà đều có cửa sổ để đón ánh sáng tự nhiên, điều này mang đến một không gian tràn ngập không khí trong lành, ngôi nhà như hòa mình với thiên nhiên, mang đến một cảm giác dễ chịu khi trở về nhà sau ngày dài học tập và làm việc.
Trên đây là bản thiết kế mẫu biệt thự 2 tầng hiện đại diện tích 11m x 15m của gia đình nhà anh Tông tại Bắc Giang. Hy vọng trên đây sẽ là gợi ý phù hợp cho các bạn khi đang muốn xây dựng ngôi nhà phong cách và kích thước tương tự. Cảm ơn và chúc các bạn thành công!
