BIỆT THỰ PHỐ NỔI BẬT TẠI QUẢNG YÊN - QUẢNG NINH
Mẫu biệt thự phố kích thước 4,5m x 15m với hình khối độc đáo,thiết kế nổi bật mang lại sự sang trọng đẳng cấp và toát lên tính cách của gia chủ. Hôm nay chúng tôi giới thiệu hồ sơ thiết kế được thực hiện bởi Nhà Đẹp 4.0 cho gia đình nhà anh Giáp có địa chỉ tại Quảng Yên, Quảng Ninh. Hy vọng đây sẽ là gợi ý hay cho các bạn!
.jpg)
Mẫu nhà phố với mặt tiền 4,5m
THÔNG TIN CÔNG TRÌNH NHÀ PHỐ DIỆN TÍCH 4,5M x 15M
- Chủ đầu tư: anh Giáp
- Địa điểm: TX Quảng Yên, Quảng Ninh
- Năm thiết kế: 2020
- Diện tích thiết kế: 4,5m x 15m
- Công năng: 4 phòng ngủ, 1 phòng thờ, 1 phòng khách, 1 phòng bếp.
- Chi phí hoàn thiện dự kiến: 1 tỷ
YÊU CẦU THIẾT KẾ CHO NGÔI NHÀ PHỐ 4,5X15M
Anh Giáp tìm đến công ty chúng tôi với những mong muốn cho ngôi nhà của mình cụ thể như sau:
- Gia đình muốn thi công mẫu nhà phố với diện tích 4,5m x 15m.
- Chính vì là nhà phố duy nhất 1 mặt tiền nên chú mong muốn ngôi nhà thật sự nổi bật và sang trọng.
- Mang hơi hướng hiện đại, đơn giản nhưng vẫn thu hút, độc đáo.
- Công năng dự kiến thi công là 4 phòng ngủ, 1 phòng thờ, 1 phòng khách, phòng bếp.
- Ngoại thất công trình màu trắng chủ đạo, điểm nhấn khỏe khoắn hiện đại, gần gũi với thiên nhiên.
- Chi phí hoàn thiện dự tính không vượt quá 1,5 tỷ.
.jpg)
Phối cảnh 3d mẫu nhà phố hiện đại diện tích 4,5x15m
Ngay sau khi tiếp nhận yêu cầu tư vấn thiết kế của chủ đầu tư, chúng tôi đã đến hiện trạng để khảo sát khu vực thi công công trình, từ đó đưa ra các phương án sơ bộ cho chủ đầu tư lựa chọn.
Sau khi chốt phương án tư vấn, chúng tôi tiến hành họp bàn và chốt phương án 3D chi tiết.
.jpg)
Với thiết kế hệ mái bằng, cùng sảnh chính rộng rãi cho công trình sẽ giúp công trình thông thoáng hơn rất nhiều, thiết kế đơn giản nhưng vẫn có sức hút độc đáo, sang trọng.
Ngoài màu trắng sứ, thân nhà còn được bật lên bởi màu của cửa sổ hệ nhôm xingfa, màu gỗ của cửa chính. Đồng thời trên tầng 3 được tạo điểm nhấn nổi bật bởi ốp gạch toàn bộ. Việc kết hợp màu sắc này giúp công trình của chúng ta không chỉ mạnh mẽ, bề thế, mà còn rất cuốn hút và nổi bật.
Đáp ứng nhu cầu thông thoáng gần gũi với thiên nhiên, chúng tôi không quên đặt ở phía trước nhà khoảng đất trồng cây giúp không gian sinh hoạt trở nên thoải mái và dễ chịu, chinh phục mọi góc nhìn xung quanh.
MẶT BẰNG CÔNG NĂNG NHÀ PHỐ DIỆN TÍCH 4,5M X 15M
.jpg)
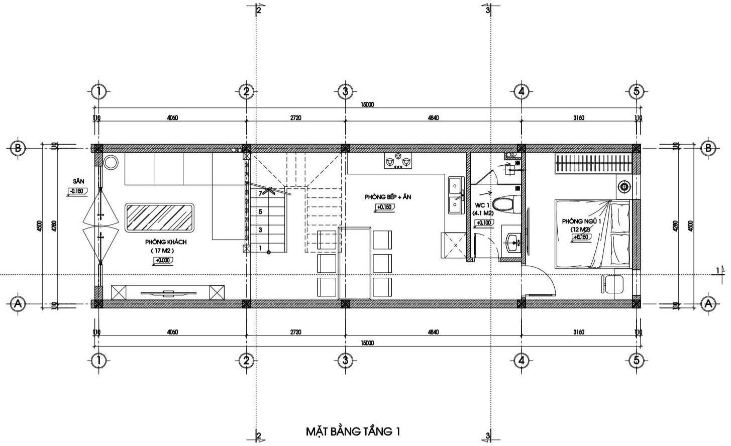
Mặt bằng tầng 1 nhà phố 4,5x15m
.jpg)
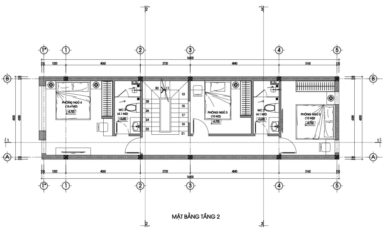
Mặt bằng tầng 2 nhà phố 4,5x15m
.jpg)
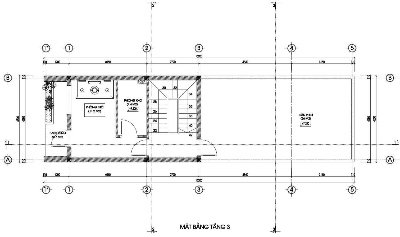
Mặt bằng tầng 3 nhà phố 4,5x15m
Bước từ ngoài vào trong là phòng khách rộng rãi với diện tích 17m2. Đi sâu vào trong là bếp ăn (22m2) với 1 wc chung (4m2). Còn lại là 1 phòng ngủ nhỏ (12m2). Lên tầng 2 được bố trí 3 phòng ngủ với 1 phòng ngủ master (16,4m2) và 2 phòng ngủ nhỏ (12m2 và 10m2). Trên tầng 2 tiếp tục được bố trí 1 wc chung có kích thước tương tự wc tầng 1. Lên tầng 3 được bố trí 1 phòng thờ (11,2m2) và 1 kho (4,5m2). Phòng thờ có 1 ban công rộng thoáng riêng. Cuối cùng trên tầng 3 có sân chơi cũng là sân phơi khá thoải mái (36m2). Không gian này được mở gần gũi với thiên nhiên, là nơi lấy lại cảm giác dễ chịu sau những ngày học tập và làm việc mệt mỏi.
Trên đây là bản thiết kế mẫu nhà phố diện tích 4,5x15m cho gia đình nhà anh Giáp. Với những gì chúng tôi đã chia sẽ, hy vọng mọi người đã có ý tưởng và dự định cho bản thân và sớm sở hữu cho mình một ngôi nhà lý tưởng. Chúc các bạn thành công!
