BIỆT THỰ LÔ PHỐ TẠI HÙNG VƯƠNG - VĨNH PHÚC
Mẫu thiết kế biệt thự nhà phố với phối cảnh kiến trúc sang trọng, tỷ lệ hình khối và mảng cục cân đối. Không gian sống sang trọng, cùng với mức kinh phí đầu tư hợp lý, hứa hẹn đem đến cho bạn một không gian sống tối ưu hoá công năng. Chúng tôi xin giới thiệu công trình mang tên "Hàm cá mập" được đội ngũ kiến trúc sư Nhà Đẹp 4.0 thiết kế cho gia đình nhà chị Ngọc tại Hùng Vương, Phúc Yên, Vĩnh Phúc. Mời các bạn cùng tham khảo.
.jpg)
Mẫu nhà phố với mặt tiền 7,5m
THÔNG TIN CÔNG TRÌNH NHÀ PHỐ DIỆN TÍCH 7,5M x 11,5M
- Chủ đầu tư: chị Ngọc
- Địa điểm: Phúc Yên, Vĩnh Phúc
- Năm thiết kế: 2020
- Diện tích thiết kế: 7,5m x 11,5m
- Công năng: 5 phòng ngủ, 1 phòng thờ, 1 phòng khách, 1 phòng bếp, 1 phòng sinh hoạt chung.
YÊU CẦU THIẾT KẾ CHO NGÔI NHÀ PHỐ 7,5X11,5M
Chị Ngọc tìm đến công ty chúng tôi với những mong muốn cho ngôi nhà của mình cụ thể như sau:
- Gia đình muốn thi công mẫu nhà phố với diện tích 7,5m x 11,5m.
- Vì là nhà phố 2 mặt tiền nên chị mong muốn ngôi nhà thật sự nổi bật và sang trọng.
- Mang hơi hướng hiện đại, đơn giản nhưng vẫn thu hút, độc đáo.
- Công năng dự kiến thi công là 5 phòng ngủ, 1 phòng thờ, 1 phòng khách, phòng bếp, 1 phòng SHC.
- Ngoại thất công trình màu trắng chủ đạo, điểm nhấn khỏe khoắn hiện đại, gần gũi với thiên nhiên.
.jpg)
Phối cảnh 3d mẫu nhà phố hiện đại diện tích 7,5x11,5m
Ngay sau khi tiếp nhận yêu cầu tư vấn thiết kế của chủ đầu tư, chúng tôi đã đến hiện trạng để khảo sát khu vực thi công công trình, từ đó đưa ra các phương án sơ bộ cho chủ đầu tư lựa chọn.
Sau khi chốt phương án tư vấn, chúng tôi tiến hành họp bàn và chốt phương án 3D chi tiết.
.jpg)
Với thiết kế hệ mái bằng, cùng 2 mặt tiền rộng rãi cho công trình sẽ giúp công trình thông thoáng hơn rất nhiều, thiết kế đơn giản nhưng vẫn có sức hút độc đáo, sang trọng. Bố cục nhà với 3 tầng 1 tum, sàn giật cấp giúp cho hình dáng ngôi nhà của chị Ngọc trở nên sang trọng và đồ sộ hơn.
Toàn bộ đế công trình được ốp đá không chỉ mang lại tính thẩm mĩ mà còn ngăn thấm nước giảm bớt sự ảnh hưởng cho chất lượng của công trình trong thời gian sử dụng.
Ngoài màu trắng sứ, thân nhà còn được bật lên bởi hệ thống đá ốp xám chạy dọc chiều cáo của nhà tạo điểm nhấn nổi bật. Đồng thời, hệ thống cửa chính bằng gỗ và cửa sổ là xingfa toàn bộ giúp công trình sang trọng lung linh hơn. Lan can các tầng được sử dụng hệ sắt dọc tĩnh điện, tối ưu sự đơn giản, hiện đại. Đặc biệt, điểm nhìn được chú ý ở công trình nhà chị Ngọc là giàn hoa trên tầng tum. Hệ thống giàn hoa được cách điệu nhưng vẫn mang sự đơn giản hiện đại cần có.
Đáp ứng nhu cầu thông thoáng gần gũi với thiên nhiên, chúng tôi không quên đặt ở xung quang nhà những khoảng đất trồng cũng như thảm cỏ xanh giúp không gian sinh hoạt trở nên thoải mái và dễ chịu, chinh phục mọi góc nhìn xung quanh.
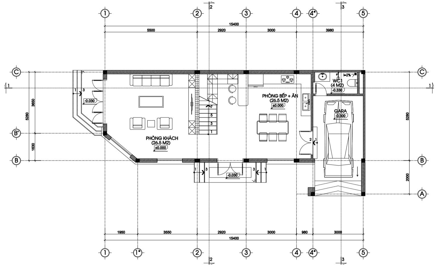
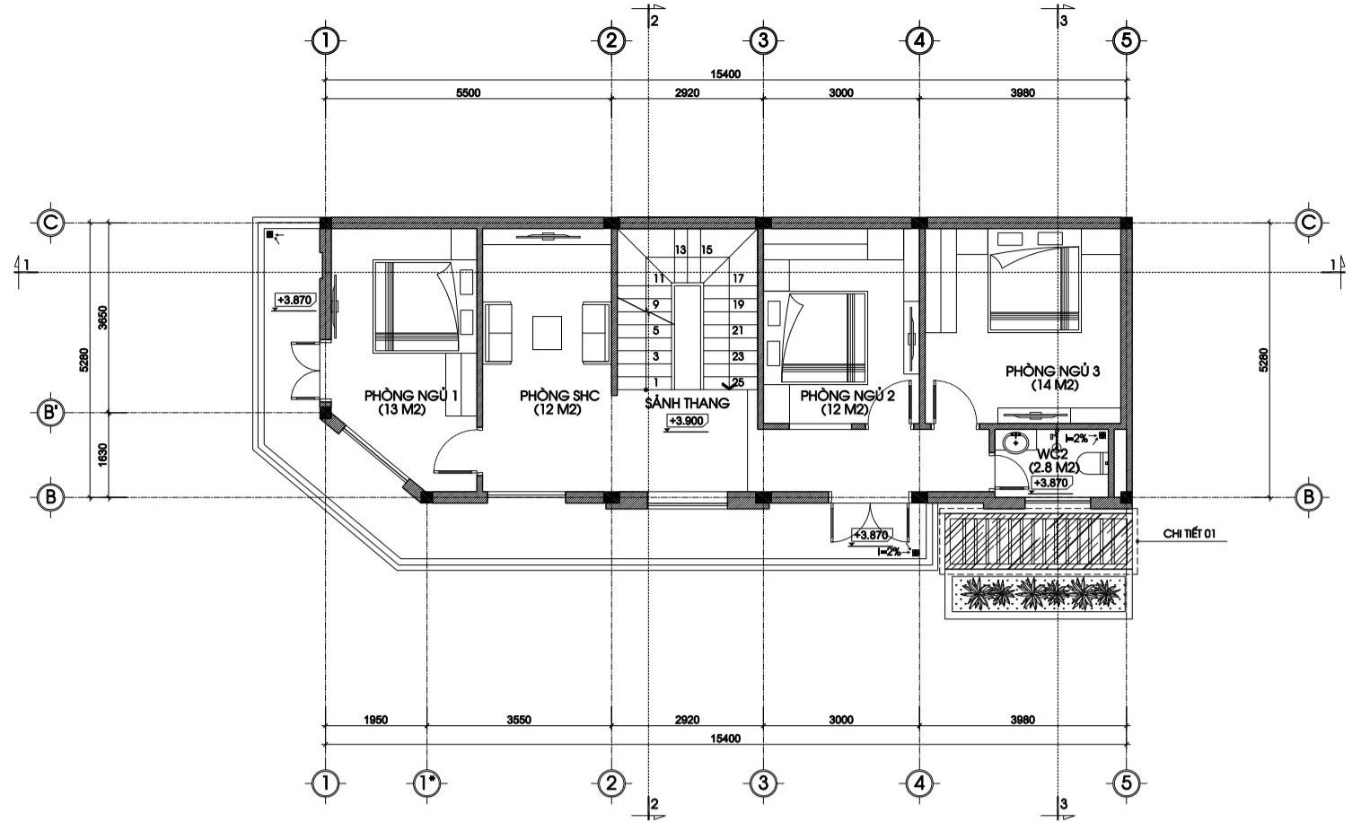
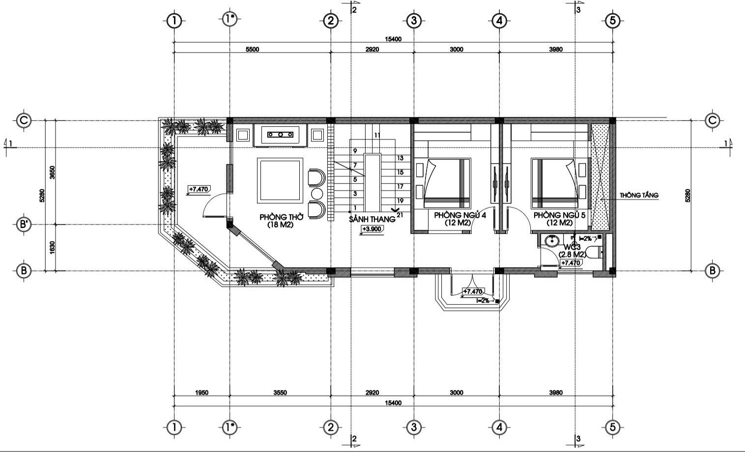
MẶT BẰNG CÔNG NĂNG NHÀ PHỐ DIỆN TÍCH 7,5M X 11,5M

Mặt bằng tầng 1 nhà phố 7,5x11,5m

Mặt bằng tầng 2 nhà phố 7,5x11,5m

Mặt bằng tầng 3 nhà phố 7,5x11,5m

Mặt bằng tầng tum nhà phố 7,5x11,5m
Bước từ ngoài vào trong là phòng khách thiết kế rộng rãi với diện tích 26,5m2. Không gian phòng khách được thiết kế tối giản với 2 hệ cửa sổ lớn tạo sự thoải mái và thoáng đãng cho ngôi nhà.
Đi sâu vào bên trong là một phòng bếp 26,5m2. Còn lại, phía sau là gara ô tô, có lối đi riêng.
Lên trên tầng 2 bên trái bố trí 2 phòng ngủ (12m2 và 14m2) và bên phải là 1 phòng ngủ (13m2) + 1 khu vực sinh hoạt chung (12m2). Ban công được trái dài theo mặt tiền, tạo không gian mở giúp công trình trở nên thoáng đãng hơn.
Công năng tầng 3 là 2 phòng ngủ còn lại (12m2) và 1 phòng thờ (18m2) có ban công riêng.
Còn lại tầng tum của công trình là không gian sân chơi và 1 sân phơi.
Tất cả các phòng trong ngôi nhà của chi Ngọc đều có cửa sổ thông ra bên ngoài, điều này mang đến một không gian tràn ngập không khí trong lành, ngôi nhà như hòa mình với thiên nhiên, mang đến một cảm giác dễ chịu khi trở về nhà sau ngày dài học tập và làm việc.
Trên đây là bản thiết kế mẫu nhà phố diện tích 7,5x11,5m cho gia đình nhà chị Ngọc. Với những gì chúng tôi đã chia sẻ, hy vọng mọi người đã có ý tưởng và dự định cho bản thân và sớm sở hữu cho mình một ngôi nhà lý tưởng. Chúc các bạn thành công!
