BIỆT THỰ 2 TẦNG HIỆN ĐẠI MÁI NHẬT TẠI MÊ LINH
Nhà vườn luôn là mẫu nhà các chủ đầu tư hướng tới. Với khuôn viên đất rộng, thoáng, thì không ngại gì chúng ta lại không dành cho mình một ngôi nhà vườn phải không nào.
Và ngày hôm nay, chúng tôi xin giới thiệu với quý vị mẫu biệt thự vườn 2 tầng mái Nhật được đội ngũ kiến trúc sư của Nhà Đẹp 4.0 thiết kế cho gia đình nhà anh Yên có địa chỉ tại Mê Linh với kích thước 11,4m x 12,2m. Mời các bạn cùng tham khảo.
.jpg)
Mẫu biệt thự 2 tầng hiện đại mái Nhật diện tích 11,4 x 12,2m
THÔNG TIN CÔNG TRÌNH BIỆT THỰ 2 TẦNG DIỆN TÍCH 11,4M X 12,2M
- Chủ đầu tư: anh Yên
- Điạ điểm: Liên Mạc – Mê Linh
- Năm thiết kế: 2020
- Diện tích thiết kế: 11,4m x 12,2m
- Công năng: 4 phòng ngủ, 1 phòng khách, 1 phòng thờ.
YÊU CẦU THIẾT KẾ CHO BIỆT THỰ 2 TẦNG DIỆN TÍCH 11,4M X 12,2M
Anh Yên tìm đến công ty chúng tôi với yêu cầu và mong muốn về ngôi nhà của mình như sau:
- Gia đình muốn thi công mẫu nhà biệt thự 2 tầng với diện tích xây dựng hơn 100m2.
- Với thế đất nhà mình, anh Yên muốn ngôi nhà của mình thực sự nổi bật, thông thoáng và nhiều cây xanh.
- Mang hơi hướng hiện đại, 2 mặt tiền, đơn giản nhưng vẫn thu hút, độc đáo.
- Công năng dự kiến thi công là 4 phòng ngủ, 1 phòng khách, 1 phòng thờ.
- Ngoại thất công trình có gam màu chủ đạo khỏe khoắn, nổi bật.
.jpg)
Phối cảnh 3d mẫu biệt thự vườn 1 tầng diện tích 11,4 x 12,2m
Ngay sau khi tiếp nhận yêu cầu tư vấn thiết kế của chủ đầu tư, chúng tôi đã đến hiện trạng bắt tay vào khảo sát khu vực thi công công trình, từ đó đưa ra các phương án sơ bộ cho chủ đầu tư lựa chọn.
Sau khi được tư vấn rất cụ thế kỹ càng cho công trình nhà mình, anh Yên nhanh chóng chốt phương án chọn, và chúng tôi tiến hành họp bàn và chốt phương án 3D chi tiết.
.jpg)
Với thiết kế hệ mái lùn kiểu Nhật độ dốc không cao, cùng 2 sảnh cho công trình sẽ giúp công trình thông thoáng hơn rất nhiều, thiết kế đơn giản nhưng vẫn có sức hút độc đáo, sang trọng.
Công trình được thiết kế hệ ngũ cấp cùng với 2 cột chính. Toàn bộ đế công trình được ốp đá không chỉ mang lại tính thẩm mĩ mà còn ngăn thấm nước giảm bớt sự ảnh hưởng cho chất lượng của công trình trong thời gian sử dụng.
Mái ngói màu xanh dương kết hợp cùng tone màu trắng sứ nhẹ nhàng sẽ tạo nên sự liên kết nổi bật và hơi hướng hiện đại. Ngoài ra, ngôi nhà còn được sử dụng màu ghi tạo điểm nhấn trên các phần phân tầng, đầu cột. Thân nhà còn được bật lên bởi những gờ đắp nổi chạy xung quanh thân nhà và tạo điểm nhấn mạnh cho các hệ thống cửa sổ.
Đáp ứng nhu cầu thông thoáng gần gũi với thiên nhiên, chúng tôi bố trí trên tầng 2 cho nhà anh Yên một khoảng ban công rộng với dàn hoa phía trên. Vừa đóng vai trò là một ban công, vừa là một sân chơi với nhiều cây hoa cây cảnh tạo sự thoải mái và trong lành sau những giờ làm việc và học tập mệt mỏi. Xung quanh nhà đều được bố trí những khoảng đất nhỏ trồng cây xanh, giúp không gian sinh hoạt trở nên thoải mái và dễ chịu, chinh phục mọi góc nhìn từ nhiều phía.
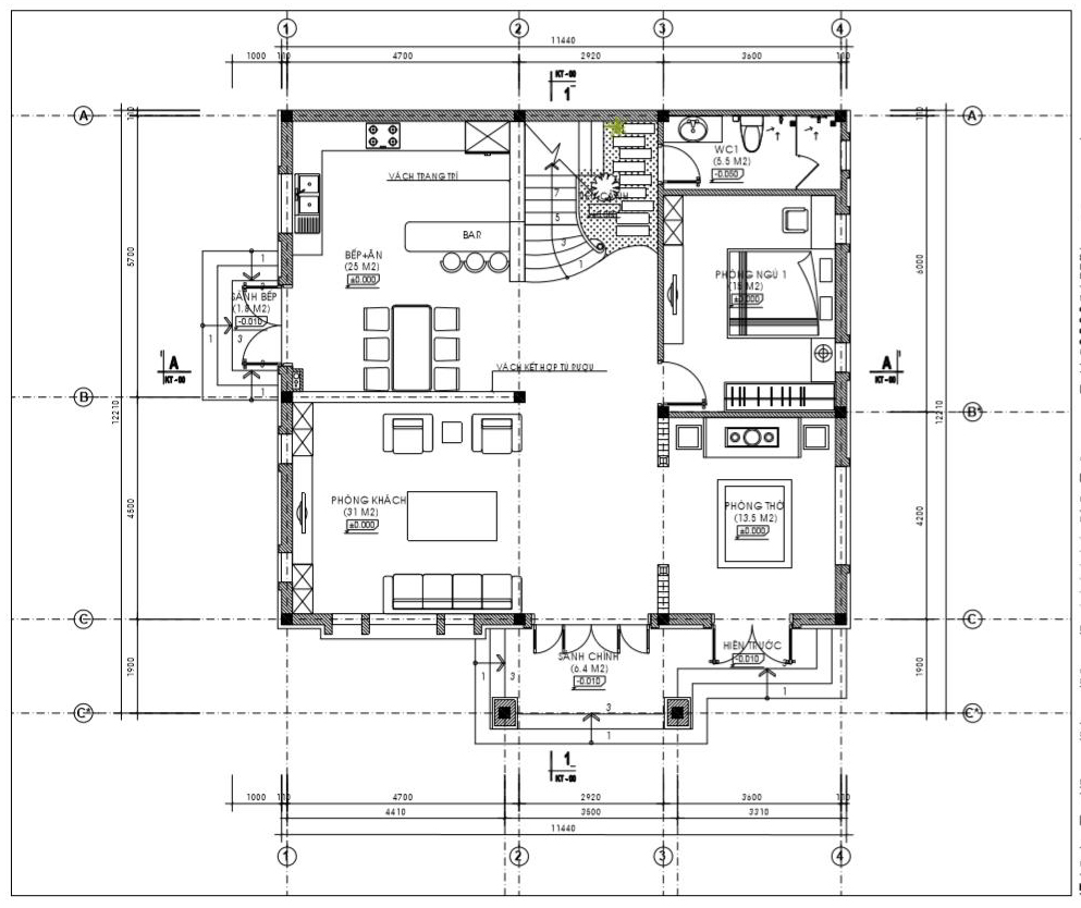
MẶT BẰNG CÔNG NĂNG BIỆT THỰ 2 TẦNG DIỆN TÍCH 11,4M X 12,2M

Mặt bằng bố trí công năng tầng 1 mẫu biệt thự 2 tầng diện tích 11,4 x 12,2m

Mặt bằng bố trí công năng tầng 2 mẫu biệt thự 2 tầng diện tích 11,4 x 12,2m
Bước từ ngoài vào trong, bên trái là phòng khách thiết kế rộng rãi với diện tích lên đến 31m2. Không gian phòng khách được thiết kế tối giản, với các hệ cửa sổ lớn nhỏ tạo sự thoải mái và thoáng đãng cho ngôi nhà.
Tiếp đó là không gian phòng thờ (13,5m2) được đặt ngay bên phải, tiện lợi cho việc hương khói của gia đình và khách khứa khi đến thăm nhà.
Đi sâu vào bên trong, phía bên phải là 1 phòng ngủ (15m2) và phía bên trái là không gian bếp (25m2). Khu vực bếp được bố trí đầy đủ bàn bar, bàn ăn nhưng giao thông đi lại vẫn rất rộng thoáng. Ngoài ra khu bếp sẽ có lối riêng ra sân sau. Đặc biệt khu vực cầu thang được bố trí tiểu cảnh tạo không gian xanh và điểm nhấn cho tầng 1.
Tầng 2 được phân chia bố cục tương tự, bố trí 3 phòng ngủ với 1 phòng ngủ master. Ngoài ra còn có 1 sân phơi và 1 sân chơi rộng rãi (14m2).
.jpg)
Phối cảnh bố trí công năng + nội thất biệt thự tầng 1
.jpg)
Phối cảnh bố trí công năng + nội thất biệt thự tầng 2
Và đương nhiên, tất cả các phòng trong ngôi nhà của anh Yên đều có cửa sổ thông ra bên ngoài, điều này mang đến một không gian tràn ngập không khí trong lành, ngôi nhà như hòa mình với thiên nhiên, mang đến một cảm giác dễ chịu khi trở về nhà sau ngày dài học tập và làm việc.
Trên đây là bản thiết kế mẫu nhà vườn 1 tầng diện tích 11,4m x 12,2m của gia đình nhà anh Yên tại Mê Linh. Hy vọng trên đây sẽ là gợi ý phù hợp cho các bạn khi đang muốn xây dựng ngôi nhà phong cách và kích thước tương tự. Cảm ơn và chúc các bạn thành công!
